Is this your property? Sell it faster with premium placement and targeted ads.
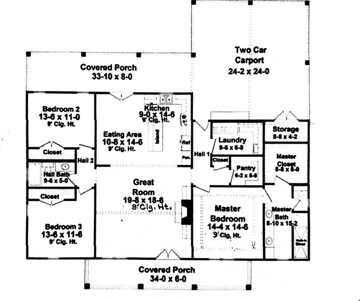
Starting at $400,000 for this custom-built 3-bedroom, 2 full bath home of 1800 square feet (shown in the photos) on 2.92 acres of wooded property. The home has 9-foot smooth painted ceilings, granite countertops in kitchen & bathrooms, hardwood flooring in main living areas, LVP in bathrooms, & soft carpeting in bedrooms. The primary bedroom is complemented by an opulent bathroom with an expensive walk-in shower & a vast closet. A 34x8 covered back porch offers views of the lush, wooded backyard. The kitchen is equipped with ample cabinet & countertop space, including a sizable island, & flows into the dining area & great room, presenting the perfect open-plan design for social gatherings. A conveniently attached 2-car carport enhances the home's charm & provides boundless entertainment possibilities. We invite you to visit, meet the builder, choose your paint colors, & explore customiza...
Starting at $400,000 for this custom-built 3-bedroom, 2 full bath home of 1800 square feet (shown in the photos) on 2.92 acres of wooded property. The home has 9-foot smooth painted ceilings, granite countertops in kitchen & bathrooms, hardwood flooring in main living areas, LVP in bathrooms, & soft carpeting in bedrooms. The primary bedroom is complemented by an opulent bathroom with an expensive walk-in shower & a vast closet. A 34x8 covered back porch offers views of the lush, wooded backyard. The kitchen is equipped with ample cabinet & countertop space, including a sizable island, & flows into the dining area & great room, presenting the perfect open-plan design for social gatherings. A conveniently attached 2-car carport enhances the home's charm & provides boundless entertainment possibilities. We invite you to visit, meet the builder, choose your paint colors, & explore customization options to make this house your dream home.
Copyright © 2025 Canopy MLS. All rights reserved. All information provided by the listing agent/broker is deemed reliable but is not guaranteed and should be independently verified.
Search for detailed parcel information including; Elevation & Vegetation Maps, Ownership Information, Detailed Parcel Information, Crop History Map, Soil Survey Productivity Data, and more.
Research Parcel InformationIs this your property? Sell it faster with premium placement and targeted ads.