Sign up
Log in
Results
View all 1 pictures

Is this your property? Sell it faster with premium placement and targeted ads.

Land - Norman, OK

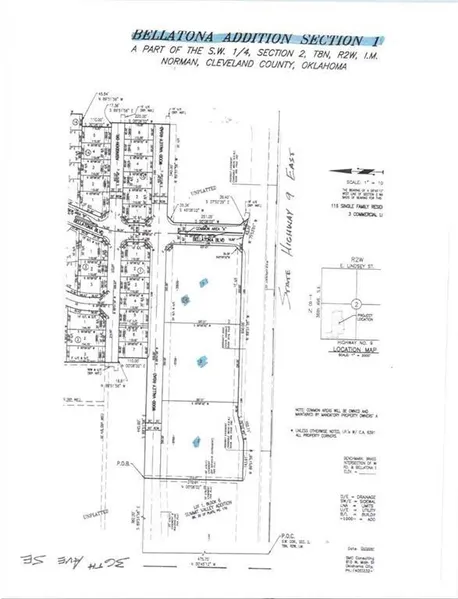
Zoning is C-1, commercial and is final platted and approved by the City of Norman. City water and sewer and other public utilities are on site. This lot is building permit ready for buyer. Great location along Highway 9 just east of the Postal Training Center with high traffic count and visibility along State Highway 9 and easy access. To the north, east and west there are large residential developments. Seller would cooperate with subdividing for potential buyers and accommodate existing site plans, specific acreage or layout requirements. Lot is on the corner of Wood Valley Road, 36th Ave SE and Highway 9 to the south.

Copyright © 2025 MLSOK, Inc. All rights reserved. All information provided by the listing agent/broker is deemed reliable but is not guaranteed and should be independently verified.

Read More

From elevation to risk assessment

Search for detailed parcel information including; Elevation & Vegetation Maps, Ownership Information, Detailed Parcel Information, Crop History Map, Soil Survey Productivity Data, and more.

Research Parcel Information
Contact Seller

Dillard Cies Real Estate

License #70987

Norman, OK

(405) 550-1929

Thomas McAuliffe

Dillard Cies Real Estate
View Phone Number
i
By clicking the button, you agree to our Terms of Use and Privacy Policy.

Is this your property? Sell it faster with premium placement and targeted ads.