Sign up
Log in
Results
View all 19 pictures

1.14 acres in Collier County, FL

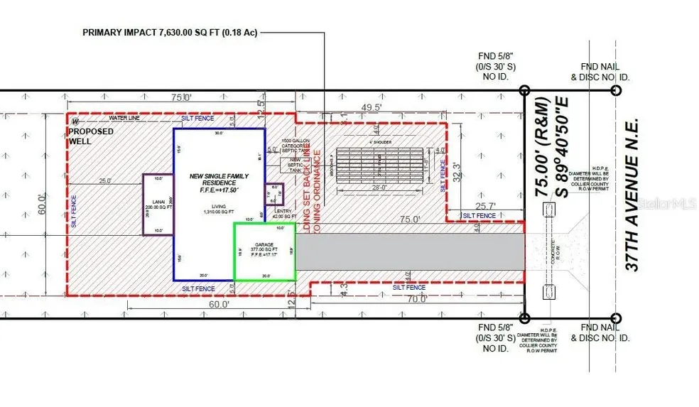
DEP Report available and ERP plans APPROVED for a 1310sf ; 2 car garage with a lanai. The ERP Permit has already been obtained no waiting required. A current survey is also included. All supporting documents can be provided upon request. See picture of the floorplan attached. LOCATION, LOCATION, LOCATION! Off of Everglades Blvd and 37th Ave NE. This outstanding vacant lot presents an excellent opportunity for anyone to build their ideal home or retreat. Situated in the rapidly growing Golden Gate Estates community in Naples, this area offers a peaceful country lifestyle with no HOA fees. Conveniently located just a short drive from Naples renowned beaches, top-rated schools, golf courses, shopping, and dining, this property combines privacy with accessibility. Don t miss the chance to own a prime piece of Southwest Florida real estate.

From elevation to risk assessment

Search for detailed parcel information including; Elevation & Vegetation Maps, Ownership Information, Detailed Parcel Information, Crop History Map, Soil Survey Productivity Data, and more.

Research Parcel Information

Directions

community in Naples, this area offers a peaceful country lifestyle with no HOA fees. Conveniently located just a short drive from Naples renowned

Contact Seller
Fast Action Realty Inc

License #3072637

Naples, FL

(239) 426-9280

Yanely Fernandez

Fast Action Realty Inc
View Phone Number
By clicking the button, you agree to our Terms of Use and Privacy Policy.