Sign up
Log in
Results
View all 5 pictures
Size: 3.76 Acres
Type: House
Home: 4 beds - 3 full baths

Single Family Residence, Other - Atlanta, GA

4790 Wieuca Road NE – Rare Buckhead Development Opportunity

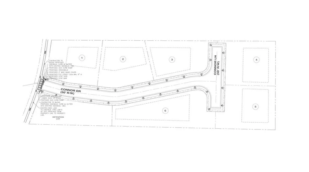
A remarkable 3.76-acre estate lot featuring approximately 250 feet of frontage on prestigious Wieuca Road. With a generous depth of 650 feet, this property is subdivided into six R-3 lots—ideal for a luxury residential enclave in one of Atlanta’s most desirable neighborhoods.

The site is currently pending Land Disturbance Permit (LDP), offering a head start for developers ready to break ground.

Centrally located between Peachtree and Roswell Road, the property offers seamless access to Buckhead’s premier dining, shopping, parks, and highly rated schools. A rare opportunity to create a high-end community in an unbeatable location.

Copyright © 2025 First Multiple Listing Service, Inc. All rights reserved. All information provided by the listing agent/broker is deemed reliable but is not guaranteed and should be independently verified.

Read More

From elevation to risk assessment

Search for detailed parcel information including; Elevation & Vegetation Maps, Ownership Information, Detailed Parcel Information, Crop History Map, Soil Survey Productivity Data, and more.

Research Parcel Information
Contact Seller

Century 21 Connect Realty

Roswell, GA

(678) 672-1888

Casey Mcguirt

Century 21 Connect Realty
View Phone Number
i
By clicking the button, you agree to our Terms of Use and Privacy Policy.