Sign up
Log in
Results
View all 19 pictures

Is this your property? Sell it faster with premium placement and targeted ads.

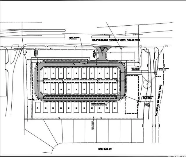
Residential Lot - Murrells Inlet, SC

Beautiful tract of Horry County Land located in a HIGHLY sought after area of the Grand Strand in Garden City Beach SC! This tract can hold up to 31 pads with a swimming pool comfortably. Short term and long term rentals allowed. High and dry, cleared land and a short walk to the Atlantic Ocean! This tract has the ability to build over 2500 sq ft beautiful beach homes each pad, 31 HPR lots with 21x40 buildable pad space on each. No rezoning necessary! An additional 3.6 Acre tract is also available as well, inquire about this future development today!

Copyright © 2025 Coastal Carolina Association of REALTORS®. All rights reserved. All information provided by the listing agent/broker is deemed reliable but is not guaranteed and should be independently verified.

Read More

From elevation to risk assessment

Search for detailed parcel information including; Elevation & Vegetation Maps, Ownership Information, Detailed Parcel Information, Crop History Map, Soil Survey Productivity Data, and more.

Research Parcel Information
Contact Seller

Keller Williams The Forturro G

Myrtle Beach, SC

(843) 443-9400

Jeff Forman

Keller Williams The Forturro G
View Phone Number
i
By clicking the button, you agree to our Terms of Use and Privacy Policy.

Is this your property? Sell it faster with premium placement and targeted ads.

Provided By

Keller Williams The Forturro G, (843) 443-9400
Source: ListHub, MLS# 2519338
Listing status: Active
Listing last updated: November 6, 2025 at 11:55 AM
Listing last checked: November 6, 2025 at 11:30 AM
Report this listing

Other Land for Sale in Horry County