Sign up
Log in
Results
View all 13 pictures
Size: 3.35 Acres
Type: Homesites

Is this your property? Sell it faster with premium placement and targeted ads.

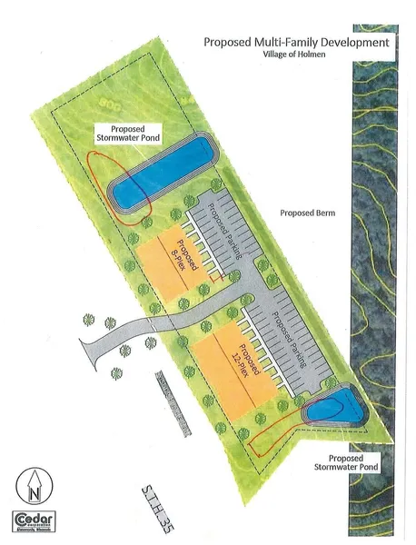
Apartment Building - Holmen, WI

Redevelopment opportunity for a multi unit property!! 3.35 acres previously approved by the Village Board for a mid-residential development. The current single family home and R1 zoning could be modified to PUD for increased density residential. The maximum number of units is undetermined and dependent upon your vision supported with engineering and design for Village approval.

Copyright © 2025 Metro MLS. All rights reserved. All information provided by the listing agent/broker is deemed reliable but is not guaranteed and should be independently verified.

Read More

From elevation to risk assessment

Search for detailed parcel information including; Elevation & Vegetation Maps, Ownership Information, Detailed Parcel Information, Crop History Map, Soil Survey Productivity Data, and more.

Research Parcel Information
Contact Seller

RE/MAX Results

License #5057-90

Onalaska, WI

(608) 781-7669

Michael J Richgels

RE/MAX Results
View Phone Number
i
By clicking the button, you agree to our Terms of Use and Privacy Policy.

Is this your property? Sell it faster with premium placement and targeted ads.