Sign up
Log in
Results
View all 3 pictures

Is this your property? Sell it faster with premium placement and targeted ads.

LAND - Cape Coral, FL

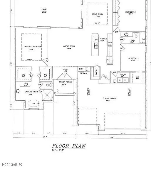
Discover the perfect canvas for your dream home on this prime waterfront vacant lot at 1509 NE 23rd St, Cape Coral, FL 33909. Spanning 10,018 sq ft (80x125 dimensions), this cleared, rectangular parcel offers canal access and stunning views along the Jaguar Canal, ideal for boating enthusiasts. Zoned RX-W residential, it's build-ready with comprehensive pre-construction essentials already completed: a detailed survey with spot elevations, site plans for a 2100 sq ft home (3 beds, 2 baths, 3-car garage), drainage and septic system designs, energy calculations, and architect-sealed permits from the Health Department. Located in a rapidly growing area near Kismet Parkway and Del Prado Boulevard, with no HOA restrictions and paved road access. Seize this opportunity in vibrant Cape Coral-perfect for builders or future homeowners!

Copyright © 2025 Florida Gulf Coast Multiple Listing Service, I...

Read More

From elevation to risk assessment

Search for detailed parcel information including; Elevation & Vegetation Maps, Ownership Information, Detailed Parcel Information, Crop History Map, Soil Survey Productivity Data, and more.

Research Parcel Information
Contact Seller

Apollo Coastal Realty LLC

License #258023011

Cape Coral, FL

(239) 233-4464

Jacob Eister

Apollo Coastal Realty LLC
View Phone Number
By clicking the button, you agree to our Terms of Use and Privacy Policy.

Is this your property? Sell it faster with premium placement and targeted ads.

Provided By

Apollo Coastal Realty LLC, (239) 233-4464
Source: ListHub, MLS# 2025013204
Listing status: Active
Listing last updated: October 2, 2025 at 11:46 AM
Listing last checked: November 19, 2025 at 10:30 AM
Report this listing

Other Land for Sale in Lee County