Sign up
Log in
Results
View all 3 pictures

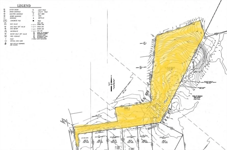
6.21 acres in Norfolk County, MA

6.21 Acres zoned Industrial - Great option for Contractors Yard. - Some Wetlands on site - See Plot Plan Attached for NE Power easement and wetlands - Buildable parcel is located approx. 750' from the street. Buyer is responsible for all approvals and permits. Call Listing Agent for more details.

From elevation to risk assessment

Search for detailed parcel information including; Elevation & Vegetation Maps, Ownership Information, Detailed Parcel Information, Crop History Map, Soil Survey Productivity Data, and more.

Research Parcel Information

Directions

Upper Union St - For Sale Sign at property -

Contact Seller

Costello Realty

Franklin, MA

(508) 980-5317

Christine Molla

Costello Realty
View Phone Number
By clicking the button, you agree to our Terms of Use and Privacy Policy.

Provided By

Costello Realty, (508) 980-5317
Source: Homes, MLS# 73230551
Listing last updated: November 8, 2025 at 7:49 AM
Listing last checked: November 7, 2025 at 6:01 AM
Report this listing