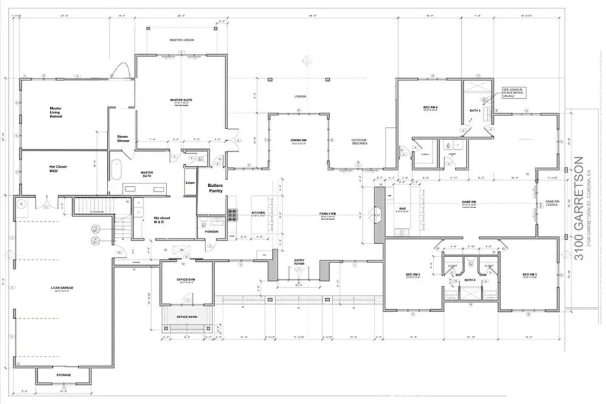
Rare opportunity to buy a 5518 Sq. Ft. on one full acre in the heart of Corona. This home is currently under construction, so please respect the work crew, and visit the property by appointment only. This home will have 4 bedrooms and 3.5 baths on the main floor, with an additional bedroom and bath on the second floor. The open floor plan will be light and bright with Cathedral ceilings in the main living areas, and a focal point fireplace. The master suite will open to the back yard, with a connected retreat and bath. The master bath, will have a walk in steam shower with a separate soaking tub, and two vanities. Each guest room will have their own walk in closet, with two of the bedrooms sharing a jack and Jill bath and the remaining bedroom will have it's own bath. The well appointed kitchen will have a luxury quartz countertop, with water fall edges on spacious island, soft clo...
Rare opportunity to buy a 5518 Sq. Ft. on one full acre in the heart of Corona. This home is currently under construction, so please respect the work crew, and visit the property by appointment only. This home will have 4 bedrooms and 3.5 baths on the main floor, with an additional bedroom and bath on the second floor. The open floor plan will be light and bright with Cathedral ceilings in the main living areas, and a focal point fireplace. The master suite will open to the back yard, with a connected retreat and bath. The master bath, will have a walk in steam shower with a separate soaking tub, and two vanities. Each guest room will have their own walk in closet, with two of the bedrooms sharing a jack and Jill bath and the remaining bedroom will have it's own bath. The well appointed kitchen will have a luxury quartz countertop, with water fall edges on spacious island, soft closing doors and drawers, with extra touches throughout. The home will boast multiple California room style patios, and will feature a spacious attached 3+ car garage and a detached RV garage. The game room will have it's own wet bar, and there will be multiple laundry facilities throughout the home. Please review the floor plan in the photo's- there has been some minor changes. More photos to follow, as the construction progresses.
Search for detailed parcel information including; Elevation & Vegetation Maps, Ownership Information, Detailed Parcel Information, Crop History Map, Soil Survey Productivity Data, and more.
Research Parcel InformationI-15 to Eo Cerrito exit, becomes Foothill,Right on Matterhorn Dr. Curves around Rainier St., Right on Mount Vernon Ave, Right on Garfield, Corner lot.