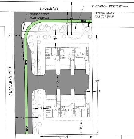
Rare opportunity to acquire prime RM-2 multifamily development land in one of Visalia's most active growth corridors. Ideally located with convenient freeway access and surrounded by modern residential subdivisions, this parcel stands out as one of the last remaining RM-2 zoned lots in the area-allowing for up to 6 multifamily units (buyer to verify). The owner of this property will benefit from the highly anticipated construction of the 198 and road 146 Interchange project to the east, greatly enhancing vehicle and pedestrian connectivity to 198 and the east side regional park! This is your chance to capitalize on strong rental demand, build equity, and generate future cash flow in a rapidly expanding market. Whether you're an experienced developer or first-time investor, the seller is open to carrying financing-making this an even more attractive opportunity. Key Highlights: RM-2 zonin...
Rare opportunity to acquire prime RM-2 multifamily development land in one of Visalia's most active growth corridors. Ideally located with convenient freeway access and surrounded by modern residential subdivisions, this parcel stands out as one of the last remaining RM-2 zoned lots in the area-allowing for up to 6 multifamily units (buyer to verify). The owner of this property will benefit from the highly anticipated construction of the 198 and road 146 Interchange project to the east, greatly enhancing vehicle and pedestrian connectivity to 198 and the east side regional park! This is your chance to capitalize on strong rental demand, build equity, and generate future cash flow in a rapidly expanding market. Whether you're an experienced developer or first-time investor, the seller is open to carrying financing-making this an even more attractive opportunity. Key Highlights: RM-2 zoning - up to 6 units (buyer to confirm) Excellent location with freeway access, nearby regional park Surrounded by new residential development Seller financing available Act now-opportunities like this don't last!
Copyright © 2025 Tulare County MLS. All rights reserved. All information provided by the listing agent/broker is deemed reliable but is not guaranteed and should be independently verified.
Search for detailed parcel information including; Elevation & Vegetation Maps, Ownership Information, Detailed Parcel Information, Crop History Map, Soil Survey Productivity Data, and more.
Research Parcel InformationHave an account?Sign In