Is this your property? Sell it faster with premium placement and targeted ads.
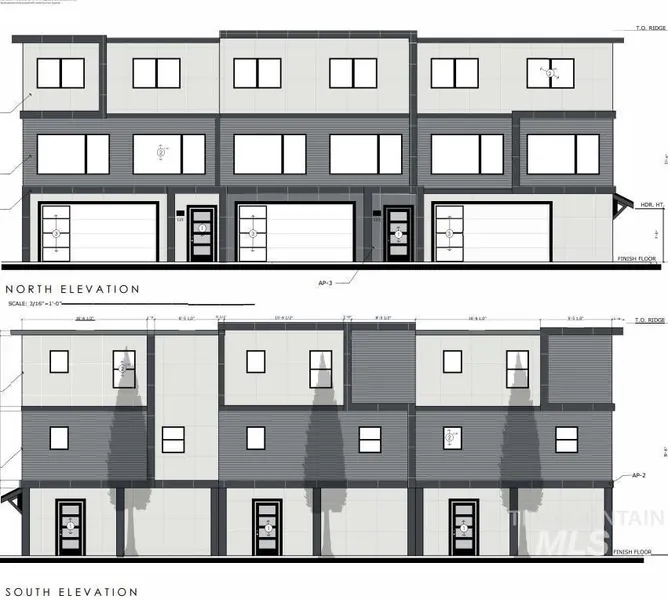
Fantastic opportunity to purchase a fully entitled triplex lot in the heart of Garden City, just blocks from the new AC Boise Soccer Stadium and the Boise River Greenbelt. This exceptional infill lot offers quick freeway access and effortless connectivity to Downtown Boise, making it ideal for both long-term rentals or future resale. The sale includes fully approved triplex plans, saving months of time and carrying costs—start building immediately. Located in one of the Treasure Valley’s fastest-growing areas, this site benefits from strong rental demand, proximity to outdoor recreation, entertainment, and major employment centers. Enjoy walkable access to the Greenbelt, nearby wineries, breweries, and river access, while remaining minutes from downtown dining, shopping, and nightlife. With entitlement in place and a highly desirable location, this property offers a compelling opportunit...
Fantastic opportunity to purchase a fully entitled triplex lot in the heart of Garden City, just blocks from the new AC Boise Soccer Stadium and the Boise River Greenbelt. This exceptional infill lot offers quick freeway access and effortless connectivity to Downtown Boise, making it ideal for both long-term rentals or future resale. The sale includes fully approved triplex plans, saving months of time and carrying costs—start building immediately. Located in one of the Treasure Valley’s fastest-growing areas, this site benefits from strong rental demand, proximity to outdoor recreation, entertainment, and major employment centers. Enjoy walkable access to the Greenbelt, nearby wineries, breweries, and river access, while remaining minutes from downtown dining, shopping, and nightlife. With entitlement in place and a highly desirable location, this property offers a compelling opportunity for developers and investors alike.
Search for detailed parcel information including; Elevation & Vegetation Maps, Ownership Information, Detailed Parcel Information, Crop History Map, Soil Survey Productivity Data, and more.
Research Parcel InformationIs this your property? Sell it faster with premium placement and targeted ads.