Sign up
Log in
Results
View all 1 pictures

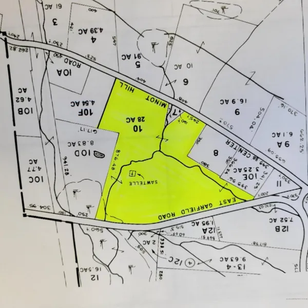
28 Acres in Minot, ME - $285,000

Great Opportunity to own a prime piece of real estate. Just over the Auburn town line into Minot is where this 26 /- acre parcel can be found. (exact acreage to be determined) Enjoy rural living with in-town conveniences. Road frontage on 2 roads with the possibilities of potentially 6 buildable lots. Property would need to go through town subdivision approval in order to to further divide the parcel at this time.....or keep it as one parcel and build your dream home. A mix of trees and fields with several great locations for situating your new home. Rare opportunity to own a great piece of property.

From elevation to risk assessment

Search for detailed parcel information including; Elevation & Vegetation Maps, Ownership Information, Detailed Parcel Information, Crop History Map, Soil Survey Productivity Data, and more.

Research Parcel Information
Contact Seller

Better Homes and Gardens Real Estate The Masiello Group

Auburn, ME

(207) 782-8311