Sign up
Log in
Results
View all 4 pictures

1 Acres in Severna Park, MD - $245,000

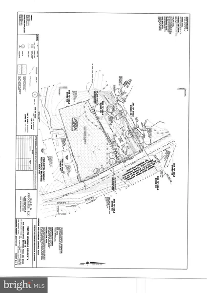
1 acre buildable lot in the heart of Severna Park. Lot is level and treed. Public utilities (water, sewer and natural gas) located at the site. Severna Park schools (Folger McKinsey Elementary, Severna Park Middle and Severna Park High). Zoned R5 - 2-lot subdivision may be possible if desired. Purchase price includes 28,800 square feet of replacement Chesapeake Bay Critical Forest Area to meet critical area forest mitigation requirements by Anne Arundel County in the permitting process. This area was purchased from the land bank titled Shady Side Tree Bank and Consolidated Reforestation Area (Patuxent River Development, LLC)

From elevation to risk assessment

Search for detailed parcel information including; Elevation & Vegetation Maps, Ownership Information, Detailed Parcel Information, Crop History Map, Soil Survey Productivity Data, and more.

Research Parcel Information
Contact Seller

CENTURY 21 The Real Estate Centre

Pasadena, MD

(410) 384-9000