Is this your property? Sell it faster with premium placement and targeted ads.
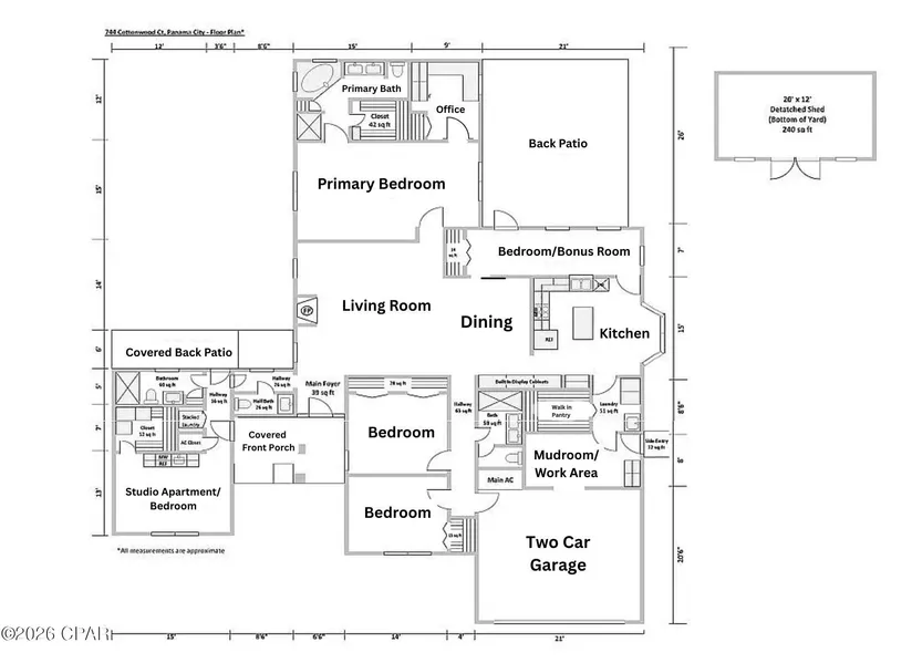
Check out this RARE property with an attached Mother-in-law suite/ guests living quarters!! This versatile 5-bedroom, 3.5-bath property tucked away on a quiet cul-de-sac. The main residence features 4 bedrooms and 2.5 baths, an open living and dining area with 10' ceilings, and a dedicated office, perfect for remote work or a quiet study. Cozy up around the electric fireplace, while enjoying low-maintenance laminate flooring and ceramic tile throughout. The home also includes a two-car garage with dedicated workspace, walk-in pantry, and a thoughtfully designed layout. Step outside to unwind in the hot tub and enjoy the privacy-fenced backyard, ideal for entertaining, pets, or relaxing evenings at home. Additional storage is available with the on-site shed. A true standout is the self-contained mother-in-law suite, offering private front and rear entrances. This space features a large st...
Check out this RARE property with an attached Mother-in-law suite/ guests living quarters!! This versatile 5-bedroom, 3.5-bath property tucked away on a quiet cul-de-sac. The main residence features 4 bedrooms and 2.5 baths, an open living and dining area with 10' ceilings, and a dedicated office, perfect for remote work or a quiet study. Cozy up around the electric fireplace, while enjoying low-maintenance laminate flooring and ceramic tile throughout. The home also includes a two-car garage with dedicated workspace, walk-in pantry, and a thoughtfully designed layout. Step outside to unwind in the hot tub and enjoy the privacy-fenced backyard, ideal for entertaining, pets, or relaxing evenings at home. Additional storage is available with the on-site shed. A true standout is the self-contained mother-in-law suite, offering private front and rear entrances. This space features a large studio-style bedroom/living area, a kitchenette with sink, microwave, and refrigerator, a spacious walk-in closet, and a full bath with granite vanity and tiled walk-in shower. A separate hallway with laundry hookups and a private covered back porch/patio add even more functionality. This flexible setup is ideal for guests, in-laws, or rental income, providing independence while remaining close by. Homes with this level of space, privacy, and versatility are truly hard to find-don't miss this opportunity and see it today! More photos coming soon!!
Copyright © 2026 Central Panhandle Association of REALTORS. All rights reserved. All information provided by the listing agent/broker is deemed reliable but is not guaranteed and should be independently verified.
Search for detailed parcel information including; Elevation & Vegetation Maps, Ownership Information, Detailed Parcel Information, Crop History Map, Soil Survey Productivity Data, and more.
Research Parcel InformationIs this your property? Sell it faster with premium placement and targeted ads.