Sign up
Log in
Results
View all 1 pictures
Size: 0.48 Acres
Type: Homesite

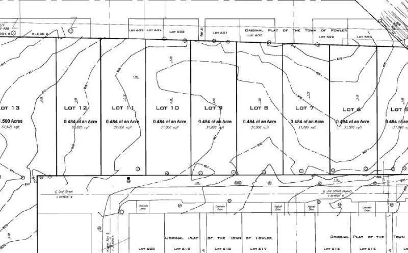
0.48 acres in Benton County, IN

Lots 9, 10, and 12 are available. Almost 1/2 acre each! Ready to build with utilities present and NO HOA! Great schools in a fantastic, safe small town, yet only minutes to West Lafayette.

From elevation to risk assessment

Search for detailed parcel information including; Elevation & Vegetation Maps, Ownership Information, Detailed Parcel Information, Crop History Map, Soil Survey Productivity Data, and more.

Research Parcel Information

Directions

GPS friendly

Contact Seller

Lafayette Listing Realty LLC

Lafayette, IN

(765) 358-7461

Dustin Robinson

Lafayette Listing Realty LLC
View Phone Number
By clicking the button, you agree to our Terms of Use and Privacy Policy.

Provided By

Lafayette Listing Realty LLC, (765) 358-7461
Source: Homes, MLS# 202548174
Listing last updated: February 8, 2026 at 6:31 AM
Listing last checked: February 7, 2026 at 6:01 AM
Report this listing

More by Dustin Robinson