Is this your property? Sell it faster with premium placement and targeted ads.
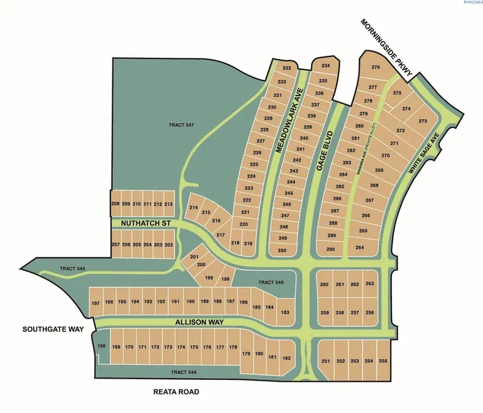
MLS# 283091 This is a presale for South Orchard Phase 2. Final Plat expected early October 2025. Closing dates within 45 days of final plat. Welcome to your future investment opportunity in the heart of South Orchard, Badger Mountain South! This rare single-family residential lot is nestled within a master-planned community designed to offer the perfect balance of convenience and tranquility. With its prime location, this land is an ideal spot for building your dream home amidst a vibrant and walkable neighborhood. Imagine living steps away from paved walking trails that connect you to scenic community parks, where relaxation and outdoor activities await. The proximity to schools ensures an easy daily commute for families, while a newly constructed fire station adds an extra layer of safety and peace of mind. This lot represents more than just land; it offers the promise of a thriving co...
MLS# 283091 This is a presale for South Orchard Phase 2. Final Plat expected early October 2025. Closing dates within 45 days of final plat. Welcome to your future investment opportunity in the heart of South Orchard, Badger Mountain South! This rare single-family residential lot is nestled within a master-planned community designed to offer the perfect balance of convenience and tranquility. With its prime location, this land is an ideal spot for building your dream home amidst a vibrant and walkable neighborhood. Imagine living steps away from paved walking trails that connect you to scenic community parks, where relaxation and outdoor activities await. The proximity to schools ensures an easy daily commute for families, while a newly constructed fire station adds an extra layer of safety and peace of mind. This lot represents more than just land; it offers the promise of a thriving community experience for families of all ages. Don’t miss the chance to create a home that’s part of a sought-after neighborhood, rich with amenities and designed for the best quality of life. Act now to secure this exceptional property and start planning the home of your dreams!
Copyright © 2025 PACMLS. All rights reserved. All information provided by the listing agent/broker is deemed reliable but is not guaranteed and should be independently verified.
Search for detailed parcel information including; Elevation & Vegetation Maps, Ownership Information, Detailed Parcel Information, Crop History Map, Soil Survey Productivity Data, and more.
Research Parcel InformationIs this your property? Sell it faster with premium placement and targeted ads.