Sign up
Log in
Results
View all 3 pictures
Size: 10 Acres

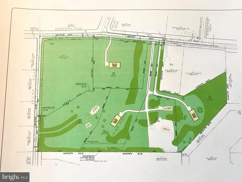
10 Acres in Chalfont, PA - $1,375,000

Three, THREE ACRES EACH, level building lots available in Warrington Township, CENTRAL BUCKS SCHOOL DISTRICT Public water, sewer and gas tie in available. Final conditional use and subdivision approval has been submitted to Warrington Township. Property is located in Central Bucks School District, backs up to Warrington Township Open Space, with a Chalfont mailing address. Lot 1: Existing ResidenceLot 2: 288.24' x 450.16' x 226.39' x274.24'Lot 3: Existing Residence with shopLot 4: 352.5' x 230' x 468.98' x 364.19'Lot 5: 342.76' x 333.68' x 228.24' x 358.65'Please call listing agent for further details.

From elevation to risk assessment

Search for detailed parcel information including; Elevation & Vegetation Maps, Ownership Information, Detailed Parcel Information, Crop History Map, Soil Survey Productivity Data, and more.

Research Parcel Information

Environmental Factors

Flood Factor ™
/ 10
Fire Factor ™
/ 10
Heat Factor ™
/ 10
Wind Factor ™
/ 10
Source:First Street
Contact Seller

Coldwell Banker Hearthside

Doylestown, PA

(267) 278-2018