Is this your property? Sell it faster with premium placement and targeted ads.
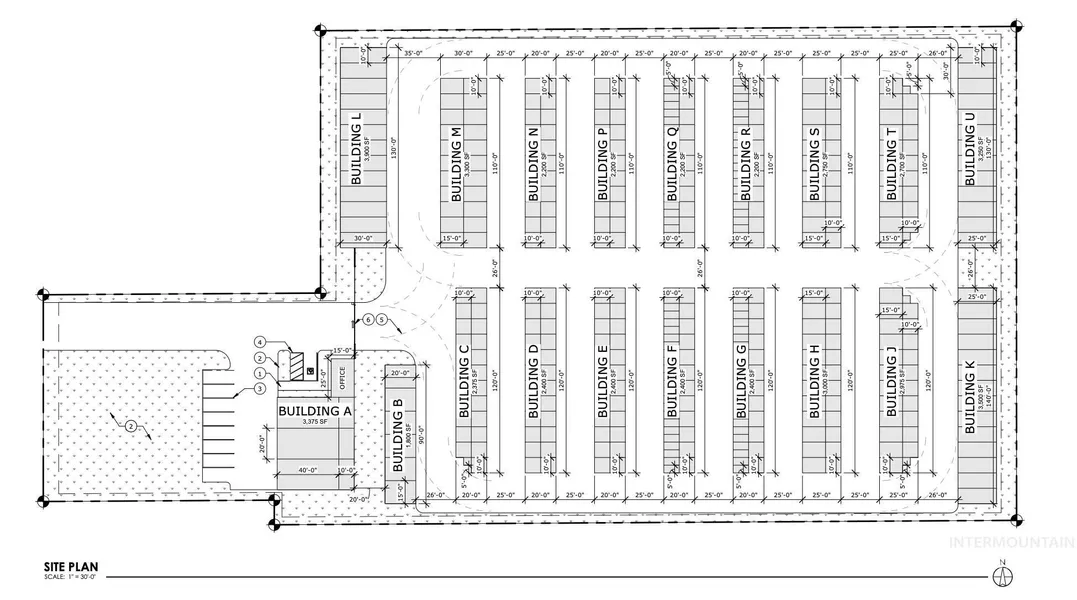
Discover an extraordinary investment opportunity on 3.89 acres in the heart of Caldwell, fully approved and ready to break ground. This shovel-ready development is designed for maximum revenue generation with 419 enclosed storage units, 3 versatile flex units, and an on-site house—perfect for a manager's residence or office. The diverse unit mix caters to personal, business, and specialty storage needs, ensuring high demand in a rapidly growing area. Projected to generate an impressive $473,000 in annual revenue at 80% occupancy, this property offers exceptional income potential in the thriving storage industry. With all approvals in place, you’ll save time and effort, accelerating your path to profitability. Strategically located in Caldwell, a city experiencing robust growth and rising demand for secure, convenient storage, this property offers investors a rare chance to own a high-per...
Discover an extraordinary investment opportunity on 3.89 acres in the heart of Caldwell, fully approved and ready to break ground. This shovel-ready development is designed for maximum revenue generation with 419 enclosed storage units, 3 versatile flex units, and an on-site house—perfect for a manager's residence or office. The diverse unit mix caters to personal, business, and specialty storage needs, ensuring high demand in a rapidly growing area. Projected to generate an impressive $473,000 in annual revenue at 80% occupancy, this property offers exceptional income potential in the thriving storage industry. With all approvals in place, you’ll save time and effort, accelerating your path to profitability. Strategically located in Caldwell, a city experiencing robust growth and rising demand for secure, convenient storage, this property offers investors a rare chance to own a high-performing asset. Contact us today for full details and seize this unparalleled development opportunity!
Copyright © 2026 Intermountain Multiple Listing Service. All rights reserved. All information provided by the listing agent/broker is deemed reliable but is not guaranteed and should be independently verified.
Search for detailed parcel information including; Elevation & Vegetation Maps, Ownership Information, Detailed Parcel Information, Crop History Map, Soil Survey Productivity Data, and more.
Research Parcel InformationIs this your property? Sell it faster with premium placement and targeted ads.