Sign up
Log in
Results
View all 15 pictures

Is this your property? Sell it faster with premium placement and targeted ads.

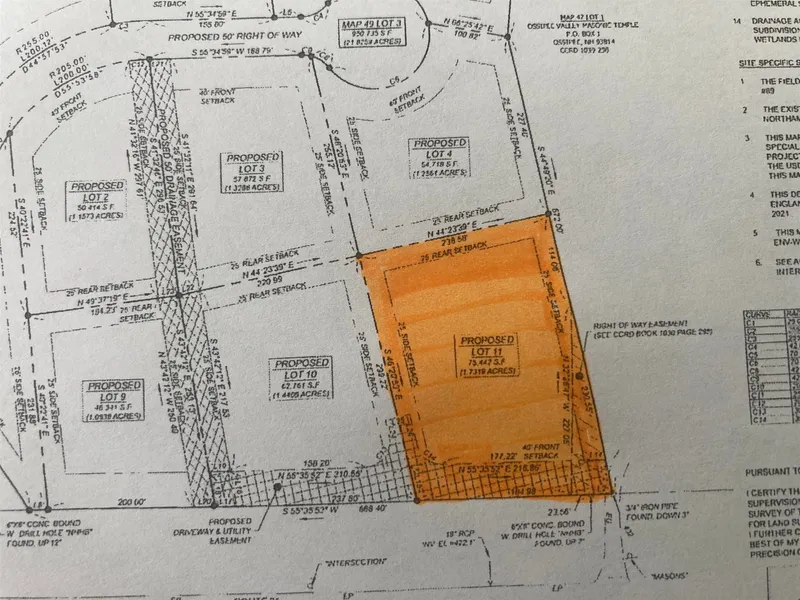
Land - Ossipee, NH

1.73 acre building lot. Property is close to 2 boat ramps to Ossipee Lake. This lot is mostly level and sandy soils to make it easy to build. Tests pits have been completed. The lot is at the beginning of a ROW/shared driveway to be named Squire Lane. Plans are in place to pave the road in the Fall. Come see what Ossipee and the surrounding towns have to offer, including: snowmobiling, skiing, hiking and more. Two other lots on this road are available to purchase as well. Come with your building or get in contact with the developer for them to build your dream home. Buyer to pay current use tax!

Copyright © 2025 PrimeMLS. All rights reserved. All information provided by the listing agent/broker is deemed reliable but is not guaranteed and should be independently verified.

Read More
Contact Seller

Costantino Real Estate LLC

Ossipee, NH

(603) 539-3200

Todd Jakubec

Costantino Real Estate LLC
View Phone Number
By clicking the button, you agree to our Terms of Use and Privacy Policy.

Is this your property? Sell it faster with premium placement and targeted ads.

Provided By

Costantino Real Estate LLC, (603) 539-3200
Source: ListHub, MLS# 5048904
Listing status: Active
Listing last updated: October 10, 2025 at 1:50 PM
Listing last checked: December 11, 2025 at 3:30 PM
Report this listing

Other Land for Sale in Carroll County