Sign up
Log in
Results
View all 3 pictures
Size: 1.17 Acres

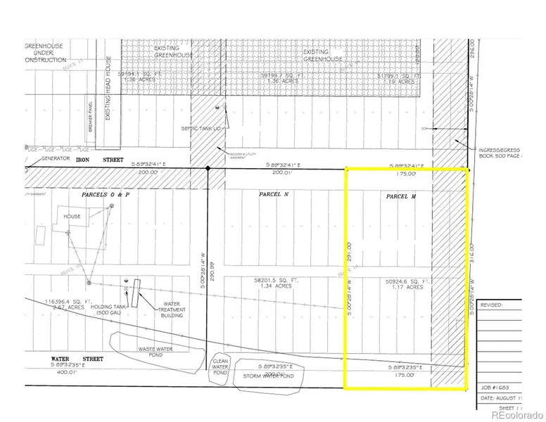
1.17 Acres in Salida, CO - $200,000

Commercial lot in Salida, Colorado. This is the level building lot that is roughly 175' x 291'. Plenty of room for lay down storage or improvement construction. Smeltertown is located conveniently off of a main highway that cuts through Downtown Salida. This would be a great access point for a courier service, auto mechanic shop, or other commercial operations.

From elevation to risk assessment

Search for detailed parcel information including; Elevation & Vegetation Maps, Ownership Information, Detailed Parcel Information, Crop History Map, Soil Survey Productivity Data, and more.

Research Parcel Information

Resources

Links
Property Website
Contact Seller
C21 Community First

License #EC40047449

Salida, CO

(719) 398-7393

Provided By

C21 Community First, (719) 398-7393
Source: MLS# 1879043
Listing last updated: September 11, 2025 at 1:02 PM
Report this listing

More by Jeff Post