Sign up
Log in
Results
View all 1 pictures
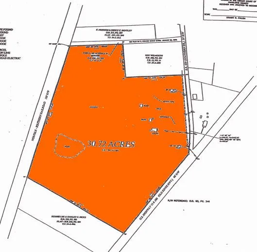
Size: 30.72 Acres

30.72 Acres in Keysville, VA - $135,000

Pond, old house site with electricity, driveway, and a septic system(condition unknown). Great setting convenient to Keysville.

From elevation to risk assessment

Search for detailed parcel information including; Elevation & Vegetation Maps, Ownership Information, Detailed Parcel Information, Crop History Map, Soil Survey Productivity Data, and more.

Research Parcel Information

Directions

Edge of Keysville at intersection of Hwy. 15/360 and Rt. 629.

Contact Seller
State Wide Realty

Farmville, VA

(434) 208-1871