Sign up
Log in
Results
View all 2 pictures

Is this your property? Sell it faster with premium placement and targeted ads.

LAND - Grovetown, GA

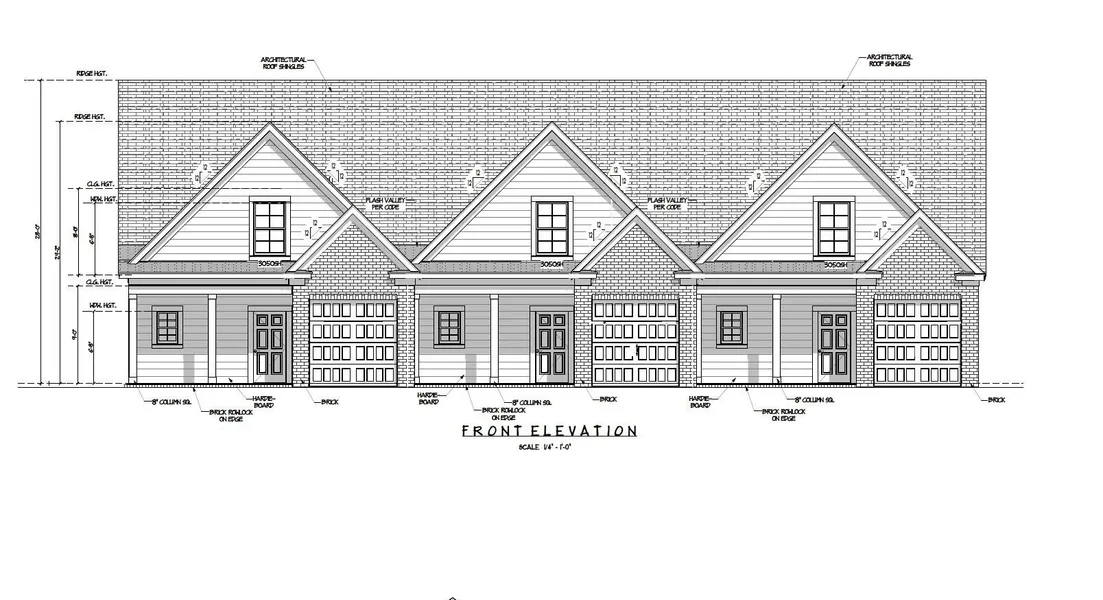
Offering consists of 3 pad ready lots in Lakeview Commons subdivision. Fully stamped and approved drawings are included in the sale. The lots must be sold together as the three townhomes are all adjoined. Lots back up to Sadie Morris Creek. New construction townhouses in Columbia County have averaged high prices per square foot.

Copyright © 2025 Greater Augusta Association of Realtors. All rights reserved. All information provided by the listing agent/broker is deemed reliable but is not guaranteed and should be independently verified.

Read More

From elevation to risk assessment

Search for detailed parcel information including; Elevation & Vegetation Maps, Ownership Information, Detailed Parcel Information, Crop History Map, Soil Survey Productivity Data, and more.

Research Parcel Information
Contact Seller

Sherman & Hemstreet Real Estate

License #282262

Evans, GA

(706) 288-1077

JOE EDGE

Sherman & Hemstreet Real Estate
View Phone Number
i
By clicking the button, you agree to our Terms of Use and Privacy Policy.

Is this your property? Sell it faster with premium placement and targeted ads.

Provided By

Sherman & Hemstreet Real Estate, (706) 627-2789
Source: ListHub, MLS# 544145
Listing status: Active
Listing last updated: October 28, 2025 at 11:31 PM
Listing last checked: October 28, 2025 at 10:38 PM
Report this listing

Other Land for Sale in Columbia County