Sign up
Log in
Results
View all 14 pictures

Is this your property? Sell it faster with premium placement and targeted ads.

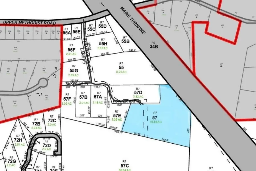
LAND - Cumberland, ME

This lovely wooded 10AC +/- parcel offers several options for an elevated building site, or two, with privacy galore and mature woods on two sides of Pointer Way. Road will likely need to be improved in order to build, so be sure to check with the town. Close to all that is happening in West Cumberland, and an easy commute to both Portland and Lewiston, this is prime real estate for a discerning investor or buyer. The adjacent parcel on Tinker Lane is also available and offered together with this one as MLS #1634922 for a total of almost 14 acres.

Copyright © 2025 Maine Real Estate Information System, Inc. All rights reserved. All information provided by the listing agent/broker is deemed reliable but is not guaranteed and should be independently verified.

Read More

From elevation to risk assessment

Search for detailed parcel information including; Elevation & Vegetation Maps, Ownership Information, Detailed Parcel Information, Crop History Map, Soil Survey Productivity Data, and more.

Research Parcel Information
Contact Seller

Keller Williams Realty

Portland, ME

(207) 318-5318

Ann Cianchette

Keller Williams Realty
View Phone Number
By clicking the button, you agree to our Terms of Use and Privacy Policy.

Is this your property? Sell it faster with premium placement and targeted ads.