Sign up
Log in
Results
View all 5 pictures

Is this your property? Sell it faster with premium placement and targeted ads.

Office - Mesquite, TX

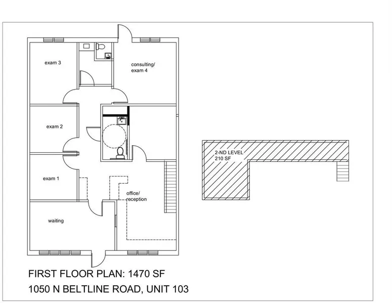
Nice Medical Condo bldg. Awesome location, Large Backlit Monument signage on Belt Line Road with 20,000+ VPD. Visible from Post Office, Mesquite Rehabilitation Hospital & Regional Hospital and Mesquite Municipal Building. Space has a reception, secretary area with counter and upper cabinets, 4 exam rooms, offices with windows, storage, rest Room. Additional 200 plus sf second floor with office and storage area. Back door access to rear private parking for staff and ample guest parking in front of the building.

Copyright © 2025 North Texas Real Estate Information Systems, Inc. All rights reserved. All information provided by the listing agent/broker is deemed reliable but is not guaranteed and should be independently verified.

Read More

From elevation to risk assessment

Search for detailed parcel information including; Elevation & Vegetation Maps, Ownership Information, Detailed Parcel Information, Crop History Map, Soil Survey Productivity Data, and more.

Research Parcel Information
Contact Seller

Everest Realty

License #0427090

Garland, TX

(972) 240-7503

John Matthew John

Everest Realty
View Phone Number
By clicking the button, you agree to our Terms of Use and Privacy Policy.

Is this your property? Sell it faster with premium placement and targeted ads.