Is this your property? Sell it faster with premium placement and targeted ads.
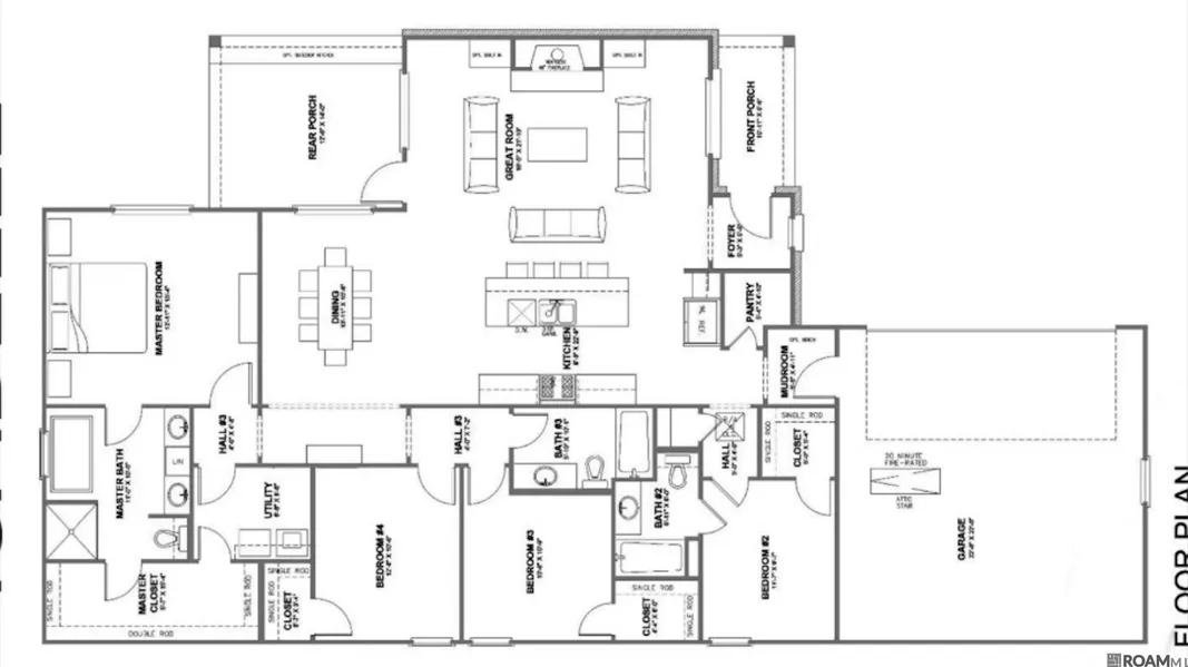
The Isabelle – New Construction in Atwater Subdivision! Welcome to The Isabelle, a beautifully designed 4-bedroom, 3-bath new construction home in the highly desirable Atwater Subdivision in Baton Rouge. Offering 2,103 square feet of living space, this thoughtfully crafted home blends modern design with everyday functionality. Step into an open-concept floor plan perfect for entertaining, featuring a spacious living area, a stylish kitchen with contemporary finishes, and a dining space that brings everyone together. The private primary suite includes a large walk-in closet and a spa-like ensuite bath with dual vanities, soaking tub, and separate shower. With three additional bedrooms, including one that’s ideal for guests or a home office, and three full bathrooms, The Isabelle offers flexibility and comfort for today’s lifestyle. A 2-car garage, covered patio, and energy-efficient feat...
The Isabelle – New Construction in Atwater Subdivision! Welcome to The Isabelle, a beautifully designed 4-bedroom, 3-bath new construction home in the highly desirable Atwater Subdivision in Baton Rouge. Offering 2,103 square feet of living space, this thoughtfully crafted home blends modern design with everyday functionality. Step into an open-concept floor plan perfect for entertaining, featuring a spacious living area, a stylish kitchen with contemporary finishes, and a dining space that brings everyone together. The private primary suite includes a large walk-in closet and a spa-like ensuite bath with dual vanities, soaking tub, and separate shower. With three additional bedrooms, including one that’s ideal for guests or a home office, and three full bathrooms, The Isabelle offers flexibility and comfort for today’s lifestyle. A 2-car garage, covered patio, and energy-efficient features round out this exceptional home. Located just minutes from I-10, shopping, and dining, The Isabelle at Atwater offers the perfect balance of location, luxury, and livability. Don’t miss your chance—schedule your private showing today!
Copyright © 2026 Greater Baton Rouge Association of REALTORS. All rights reserved. All information provided by the listing agent/broker is deemed reliable but is not guaranteed and should be independently verified.
Search for detailed parcel information including; Elevation & Vegetation Maps, Ownership Information, Detailed Parcel Information, Crop History Map, Soil Survey Productivity Data, and more.
Research Parcel InformationIs this your property? Sell it faster with premium placement and targeted ads.