This beautiful 4-bedroom, 3 bath, mountain property, in the Iron Mountain Wilderness, is an artist and nature lover’s dream. Located just off of County Rd 1 (Iron Mountain Rd) which is a county-maintained road and Mac Donnell Dr which is a Glen Vista graveled road. This property is not in the HOA! One corner of the property borders 79 acres of BLM, with thousands more in the surrounding area. Enjoy peace and solitude on 22 acres of varied terrain, with open meadows, trees, rolling hills and amazing views of the Sangre de Cristo Mountains. As you enter the front entrance you are greeted with an artistic masterpiece of natural stone and wood, a theme that continues throughout the home. Each room reveals creative and magical creations. The enclosed heated front patio is bright and spacious, inviting you to sit and take in the peaceful surroundings. Imagine an indoor greenhouse, art studio, ...
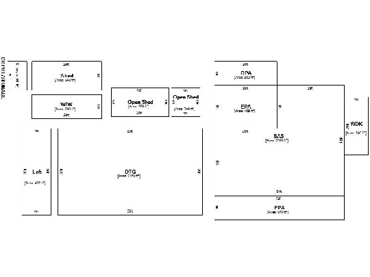
This beautiful 4-bedroom, 3 bath, mountain property, in the Iron Mountain Wilderness, is an artist and nature lover’s dream. Located just off of County Rd 1 (Iron Mountain Rd) which is a county-maintained road and Mac Donnell Dr which is a Glen Vista graveled road. This property is not in the HOA! One corner of the property borders 79 acres of BLM, with thousands more in the surrounding area. Enjoy peace and solitude on 22 acres of varied terrain, with open meadows, trees, rolling hills and amazing views of the Sangre de Cristo Mountains. As you enter the front entrance you are greeted with an artistic masterpiece of natural stone and wood, a theme that continues throughout the home. Each room reveals creative and magical creations. The enclosed heated front patio is bright and spacious, inviting you to sit and take in the peaceful surroundings. Imagine an indoor greenhouse, art studio, play area, the possibilities are endless with this amazing space. This custom-built home has a floor plan that is very well thought out. The open great room, with vaulted ceilings and a cozy woodstove, combines the living room, kitchen and dining room into a perfect area for gatherings with friends and family. The huge family room with a second woodstove, is close by but separate. The master bedroom is spacious and private, being on the opposite side of the house from the other bedrooms. One of the bedrooms, currently being used as a home office, is located away from the remaining two bedrooms, again providing lots of privacy. The 2000 sq ft pole barn/garage/workshop has so many possibilities. This isn't just a home, it's a mountain lifestyle, where every detail is designed to bring comfort, beauty, and nature together. The solar system is paid off and has new lithum batteries. The 1000 gallon propane tank is included. The crawl space is approximately 5 feet tall for easy access and storage!
Search for detailed parcel information including; Elevation & Vegetation Maps, Ownership Information, Detailed Parcel Information, Crop History Map, Soil Survey Productivity Data, and more.
Research Parcel InformationHwy 50 west from Canon City, left on Co Rd 3 which turns into Copper Gulch Rd. Left on Co Rd 1 (Iron Mt Rd). Right on MacDonnell Dr., home will be on the left.