Sign up
Log in
Results
View all 2 pictures

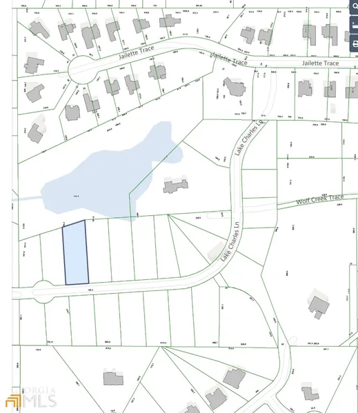
0.6 Acres in Atlanta, GA - $55,000

This plot of land sits on Lake Charles in South Fulton County. It has over 26,000 sq. ft./.60 acres. This area is currently under development and you don't want to miss the opportunity to build your dream home. Convenient access to surrounding amenities. It is near the Wolf Creek Multi-Use Trail, Hartsfield-Jackson Atlanta Airport, and downtown Atlanta.

From elevation to risk assessment

Search for detailed parcel information including; Elevation & Vegetation Maps, Ownership Information, Detailed Parcel Information, Crop History Map, Soil Survey Productivity Data, and more.

Research Parcel Information
Contact Seller

Better Homes and Gardens Real Estate Metro Brokers

Stockbridge, GA

(404) 843-2500