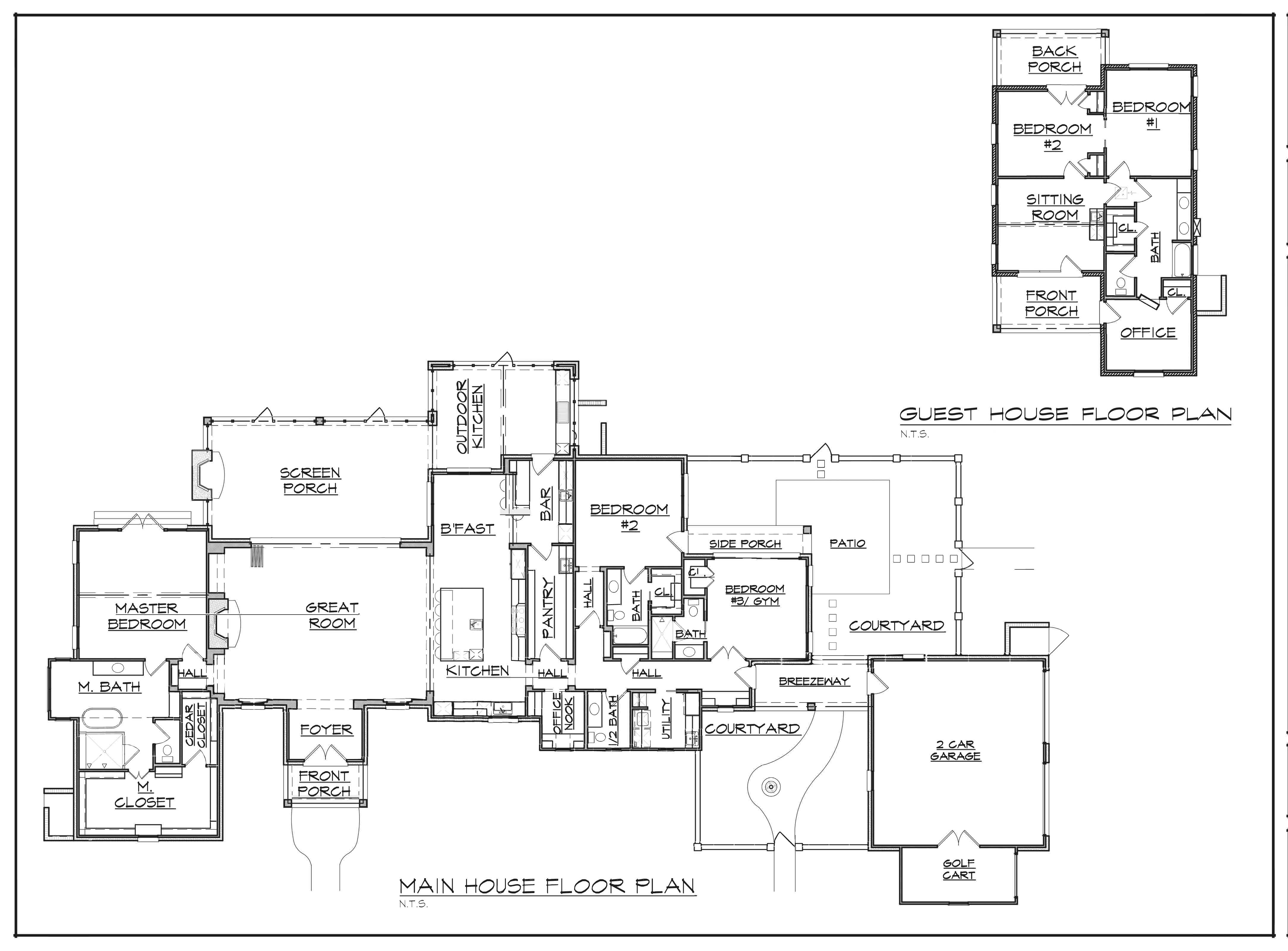
Finally, a one-of-a-kind home to match your one-of-a-kind style. This 4,602+/- sq ft home is an exquisite blend of architectural treasures from around the world, contemporary interior living spaces, and historically-inspired Hill Country design. Nestled in a grove of 100-year-old pecan trees on more than 13 acres, the home and adjacent guest house provide a peaceful oasis within the private-club community of Boot Ranch.
Pollard-Hodgson Architects created a masterful flow between the great room, kitchen, dining area, bar, screened porch and outdoor kitchen/dining areas. The great room has soaring ceilings, high clerestory windows and a massive stone fireplace. A wall of accordion-fold glass doors opens to the screened porch, which has limestone floors, fireplace, complete outdoor kitchen and dining area.
The open kitchen features a gorgeous stone breakfast bar, a tiled wall with one-o...
The open kitchen features a gorgeous stone breakfast bar, a tiled wall with one-of-a-kind metal sculpture vent hood, contemporary flush cabinetry and premium Viking appliances including a 48 built-in refrigerator/freezer. The adjacent dining area includes a large built-in bar with full-height wine cooler and commercial ice machine.
The 800 sq ft master suite wing includes a bedroom with French doors to the fenced outdoor area, an elegant bathroom with floating vanity and soaking tub, and a masterfully outfitted closet and cedar closet. On the opposite end of the home is a walk-through pantry, office nook, powder room, laundry room and two additional en-suite bedrooms that open onto a private courtyard. A covered breezeway leads to a two-car garage with golf cart storage.
Steps from the home is a 1,000+ sq ft guest house that includes front and rear covered porches, a sitting room with morning kitchen, two bedrooms, a bathroom and flex space for an office or playroom.
Purchase of this property includes a $100K exclusive membership to Boot Ranch, with access to private golf and family amenities in a luxury community with homes ranging from $1.3M to $10M. The community boasts a lake club, swimming pools, fitness center, golf, fishing, private dining, the 55,000 sq ft Clubhouse Village, tennis, multi-sport courts, biking, trail systems, trap and skeet range and regular member activities.
Search for detailed parcel information including; Elevation & Vegetation Maps, Ownership Information, Detailed Parcel Information, Crop History Map, Soil Survey Productivity Data, and more.
Research Parcel InformationHead northwest on W Main St. Turn right onto N Milam St for 1.4 miles. Continue onto Ranch Rd 965 for 3.6 miles. Turn left onto Boot Ranch Cir and proceed for 2.7 miles; house will be on right.