Is this your property? Sell it faster with premium placement and targeted ads.
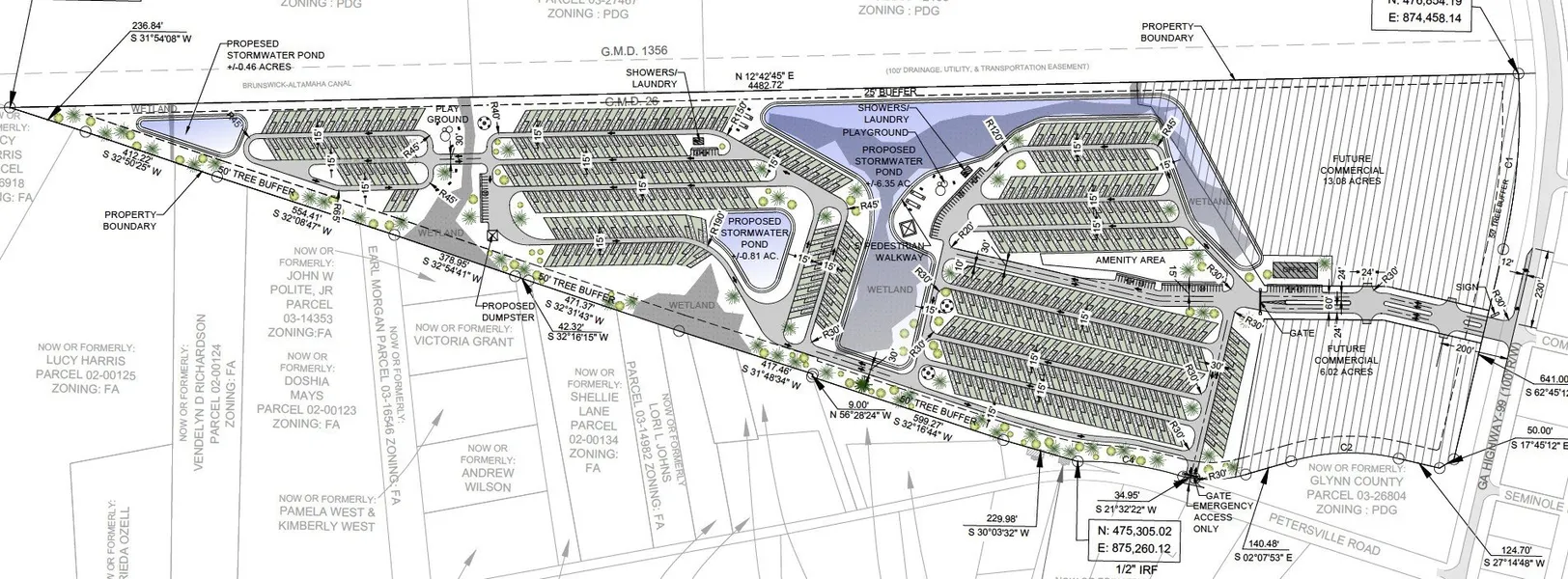
Prime commercial development opportunity located less than half a mile from the new Buc-ee's and Interstate 95, this offering includes two strategically positioned tracts—Tract 2 (11.652 acres) and Tract 3 (5.954 acres)—flanking the entrance to a 56-acre high-end RV resort currently under construction. This site offers exceptional visibility, direct access, and exposure to rapidly growing traffic volumes, which are expected to increase significantly with the ongoing four-lane expansion of Highway 17. The Georgia Department of Transportation has recently installed new roundabouts to the east and west of the site to improve traffic flow and connectivity. Just across I-95, D. R. Horton has broken ground on a large-scale residential development entitled for 2,301 homes, further signaling the area's explosive growth. Additionally, construction is underway on the first three buildings of the 7...
Prime commercial development opportunity located less than half a mile from the new Buc-ee's and Interstate 95, this offering includes two strategically positioned tracts—Tract 2 (11.652 acres) and Tract 3 (5.954 acres)—flanking the entrance to a 56-acre high-end RV resort currently under construction. This site offers exceptional visibility, direct access, and exposure to rapidly growing traffic volumes, which are expected to increase significantly with the ongoing four-lane expansion of Highway 17. The Georgia Department of Transportation has recently installed new roundabouts to the east and west of the site to improve traffic flow and connectivity. Just across I-95, D. R. Horton has broken ground on a large-scale residential development entitled for 2,301 homes, further signaling the area's explosive growth. Additionally, construction is underway on the first three buildings of the 750-acre Tradewinds Industrial Park, located in the southwest quadrant of Exit 42. This is a rare opportunity to secure a high-visibility commercial site in one of Glynn County's most rapidly developing corridors—providing a vital connection from I-95 to St. Simons Island, Sea Island, and downtown Brunswick.
Copyright © 2026 My State MLS. All rights reserved. All information provided by the listing agent/broker is deemed reliable but is not guaranteed and should be independently verified.
Search for detailed parcel information including; Elevation & Vegetation Maps, Ownership Information, Detailed Parcel Information, Crop History Map, Soil Survey Productivity Data, and more.
Research Parcel InformationIs this your property? Sell it faster with premium placement and targeted ads.