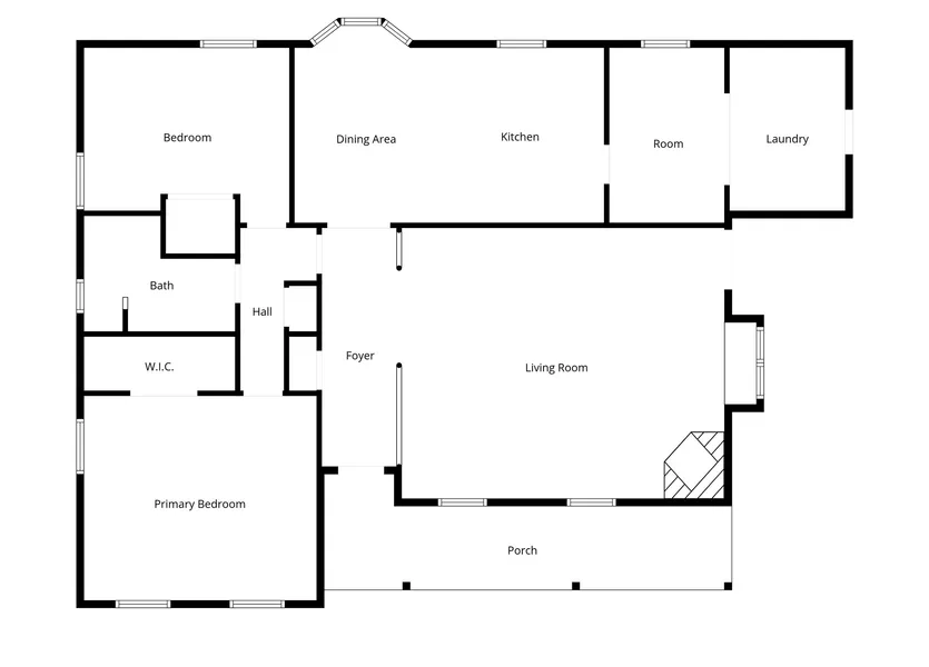
Welcome to this charming 2-bed, 1-bath home situated on 4 acres along Hwy 30 in Grimes County. Inside, spacious rooms are highlighted by exposed cedar beams in the living room, along with a cozy wood-burning fireplace. The living area flows seamlessly into the kitchen and dining space, making it ideal for both everyday living and entertaining. The kitchen is well equipped with a gas cooktop, double built-in ovens, abundant cabinetry for ample storage, and a built-in study or home office area. Both bedrooms are generously sized and share a centrally located bathroom. Step outside to enjoy gatherings and weekend BBQs on the deck featuring a built-in grill, where you can take in stunning sunset views and the surrounding wildlife. Roof replaced in 2019, A/C replaced in 2025, and new tankless water heater was installed in 2025. Don’t miss this unique opportunity to own acreage with character,...
Welcome to this charming 2-bed, 1-bath home situated on 4 acres along Hwy 30 in Grimes County. Inside, spacious rooms are highlighted by exposed cedar beams in the living room, along with a cozy wood-burning fireplace. The living area flows seamlessly into the kitchen and dining space, making it ideal for both everyday living and entertaining. The kitchen is well equipped with a gas cooktop, double built-in ovens, abundant cabinetry for ample storage, and a built-in study or home office area. Both bedrooms are generously sized and share a centrally located bathroom. Step outside to enjoy gatherings and weekend BBQs on the deck featuring a built-in grill, where you can take in stunning sunset views and the surrounding wildlife. Roof replaced in 2019, A/C replaced in 2025, and new tankless water heater was installed in 2025. Don’t miss this unique opportunity to own acreage with character, conveniently located just 20 minutes from College Station and 30 minutes from Huntsville!
Copyright 2026 Houston Area Realtors. All rights reserved.
Search for detailed parcel information including; Elevation & Vegetation Maps, Ownership Information, Detailed Parcel Information, Crop History Map, Soil Survey Productivity Data, and more.
Research Parcel Information