Sign up
Log in
Results
View all 1 pictures

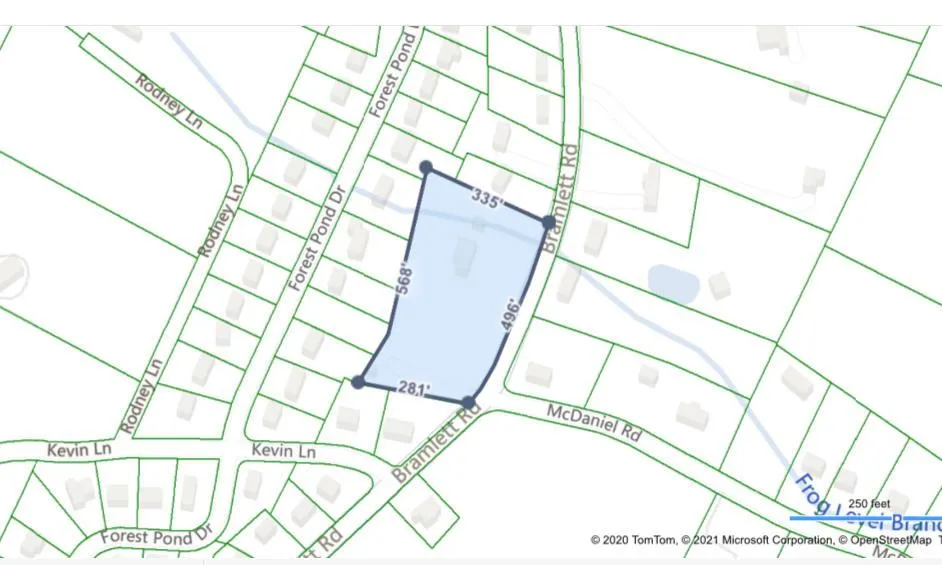
3.5 Acres in Harrison, TN - $159,900

ATTENTION TO ALL DEVELOPERS AND INVESTORS AND INDIVIDUALS LOOKING FOR ESTATE LOT!! This three and half acre parcel has high potential to become 6 individual lots for building (septic tank) with mostly road frontage (493' of road frontage) and generally easy to build grading/topography across the property. The property has already been surveyed and a 6 plan plan was approved conditionally through the planning commission.. With very little work, once could have 6 lots ready for new construction houses in the fast growing Harrison area. There is currently a 4 bed 2 full bath manufactured home on the property that could also be rehabbed to be lived in for very little cost. The lot is only minutes away from Harrison Bay, Skull Island, and multiple boat docks/ramps. Value given to the property

From elevation to risk assessment

Search for detailed parcel information including; Elevation & Vegetation Maps, Ownership Information, Detailed Parcel Information, Crop History Map, Soil Survey Productivity Data, and more.

Research Parcel Information

Environmental Factors

Flood Factor ™
/ 10
Fire Factor ™
/ 10
Heat Factor ™
/ 10
Wind Factor ™
/ 10
Source:First Street
Contact Seller

Better Homes and Gardens Real Estate Signature Brokers

Chattanooga, TN

(423) 774-6401

Provided By

Better Homes and Gardens Real Estate Signature Brokers, (423) 774-6401
Source: Better Homes & Gardens Real Estate, MLS# 1329609
Listing last updated: February 6, 2022 at 10:09 AM
Listing last checked: December 1, 2025 at 9:31 AM
Report this listing

Other Land for Sale in Hamilton County