Sign up
Log in
Results
View all 1 pictures

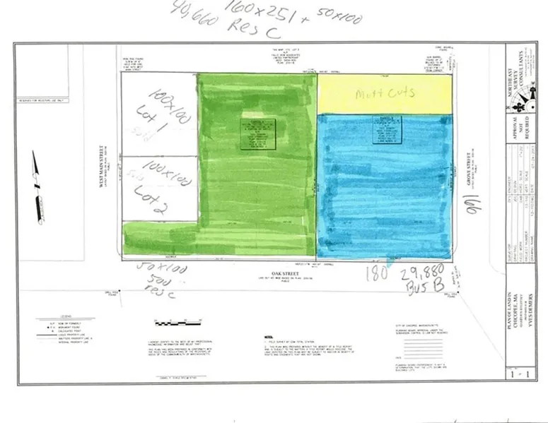
0.93 Acres in Chicopee, MA - $210,000

Res C multi family lot in downtown Chicopee. Lot size should allow for 19 unit apartment building. Buyer/developer to do due diligence with city. All utilities are at street. At least one sewer line stub is in place. New buildings going up on West Main street. Buildings across the street are being demolished. This is a prime piece to develop in Chicopee Res C. Lot for sale is in green on picture of map.

From elevation to risk assessment

Search for detailed parcel information including; Elevation & Vegetation Maps, Ownership Information, Detailed Parcel Information, Crop History Map, Soil Survey Productivity Data, and more.

Research Parcel Information

Unlock the full LandWatch experience

Have an account?Sign In

Contact Seller

CENTURY 21 A-1 Nolan Realty, LLC

West Springfield, MA

(413) 348-0428

Provided By

CENTURY 21 A-1 Nolan Realty, LLC, (413) 348-0428
Source: Century 21, MLS# 72522597
Listing last updated: February 5, 2022 at 5:57 PM
Listing last checked: October 10, 2025 at 5:30 AM
Report this listing

Other Land for Sale in Hampden County