Sign up
Log in
Results
View all 7 pictures

Is this your property? Sell it faster with premium placement and targeted ads.

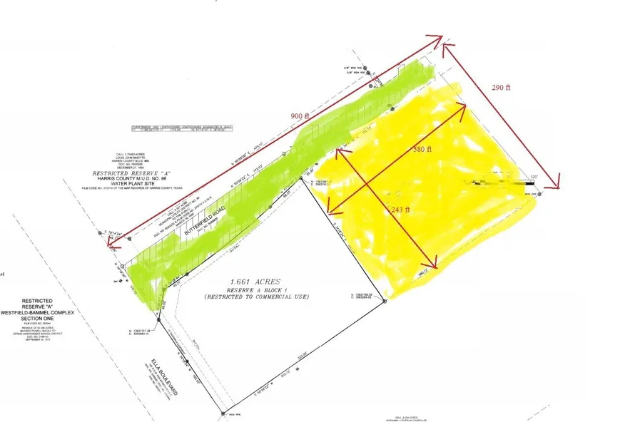
3 Acres in Houston, TX - $1,117,000

4+ Acres of Land Available (Yellow & Green Area). 3+ Acres (Yellow Usable Area), Located in the Heart of FM1960 for Commercial or Residential Use. Land situated directly across from a Highschool and Close to Long Term Assisted Living. Green Highlighted Area is Reserved for Butterfield Rd. Project forthcoming by Harris County. County Planning Intends to Install Traffic Light and Roads/Sidewalks on the Corner of Ella & Butterfield. Usable 3+ Acres is Ideal for Multifamily Residential Use. No Restrictions. Call with Questions!

From elevation to risk assessment

Search for detailed parcel information including; Elevation & Vegetation Maps, Ownership Information, Detailed Parcel Information, Crop History Map, Soil Survey Productivity Data, and more.

Research Parcel Information

Environmental Factors

Flood Factor ™
/ 10
Fire Factor ™
/ 10
Heat Factor ™
/ 10
Wind Factor ™
/ 10
Source:First Street

Is this your property? Sell it faster with premium placement and targeted ads.

Provided By

0
Source: Century 21, MLS# 62572082
Listing last updated: June 8, 2025 at 7:33 AM
Listing last checked: January 15, 2026 at 5:30 AM
Report this listing