Sign up
Log in
Results
View all 4 pictures

Is this your property? Sell it faster with premium placement and targeted ads.

LT 5 BLK L LIBERTY ROAD MANOR SEC 7 U/R

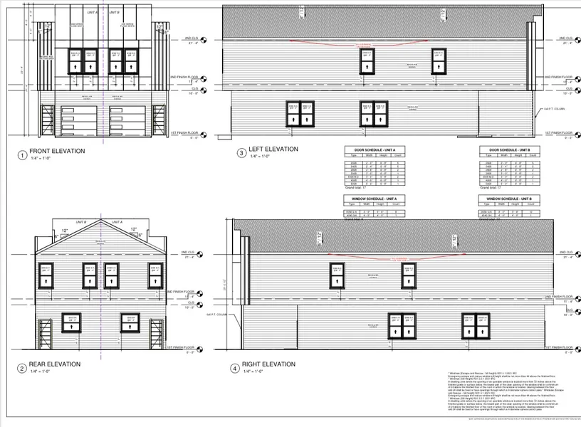
APPROVED PLANS INCLUDED WITH THE SALE! Lot is clear and ready to be built on. Easy access to 610, 59 and I-10

Copyright 2025 Houston Area Realtors. All rights reserved.

Read More

From elevation to risk assessment

Search for detailed parcel information including; Elevation & Vegetation Maps, Ownership Information, Detailed Parcel Information, Crop History Map, Soil Survey Productivity Data, and more.

Research Parcel Information
Contact Seller

eXp Realty LLC

License #0710283

(832) 468-4362

Nancy Ramos

eXp Realty LLC
View Phone Number
By clicking the button, you agree to our Terms of Use and Privacy Policy.

Is this your property? Sell it faster with premium placement and targeted ads.

Provided By

eXp Realty LLC, (832) 468-4362
Source: Houston Area Realtors, MLS# 91654792
Listing last updated: November 24, 2025 at 6:06 PM
Listing last checked: February 9, 2026 at 9:20 PM
Report this listing

Other Land for Sale in Harris County