Sign up
Log in
Results
View all 3 pictures

Is this your property? Sell it faster with premium placement and targeted ads.

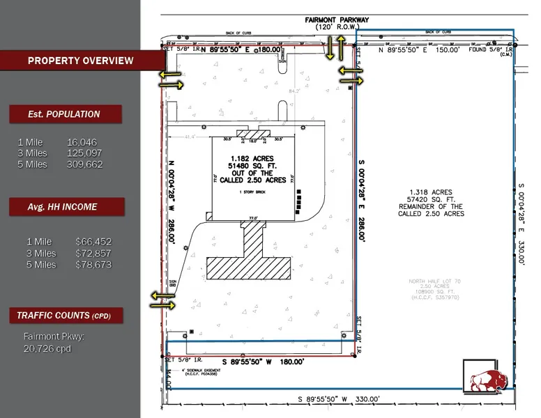
TR 70 HIGHLAND ACRES

Cleared ±1.31 acres with 150 feet of Fairmont Parkway frontage and cross access to the adjacent property, allowing access to Fox Meadow Lane. Pasadena has no city zoning, making the site suitable for QSR, auto service, medical, office, or retail. Currently offered for ground lease or sale in a high-visibility corridor near major employers in petrochemical, manufacturing, healthcare, and aerospace.

Copyright 2026 Houston Area Realtors. All rights reserved.

Read More

From elevation to risk assessment

Search for detailed parcel information including; Elevation & Vegetation Maps, Ownership Information, Detailed Parcel Information, Crop History Map, Soil Survey Productivity Data, and more.

Research Parcel Information

Environmental Factors

Flood Factor ™
/ 10
Fire Factor ™
/ 10
Heat Factor ™
/ 10
Wind Factor ™
/ 10
Source:First Street
Contact Seller

Buffalo Real Estate Partners

License #0599417

(713) 299-9040

Justin Patchen

Buffalo Real Estate Partners
View Phone Number
By clicking the button, you agree to our Terms of Use and Privacy Policy.

Is this your property? Sell it faster with premium placement and targeted ads.

Provided By

Buffalo Real Estate Partners, (713) 299-9040
Source: Houston Area Realtors, MLS# 64044821
Listing last updated: January 21, 2026 at 8:53 PM
Listing last checked: February 6, 2026 at 5:20 AM
Report this listing

Other Land for Sale in Harris County