Sign up
Log in
Results
View all 5 pictures

0.12 Acres in Minneapolis, MN - $310,000

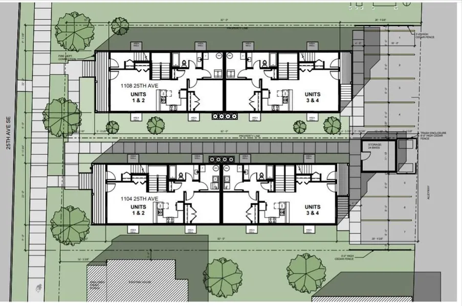
Redevelopment opportunity! Remove this building and build NEW! Owners have entitlements with the City of Mpls to build a dense 4-unit with 5BR/4BA on this site and also on the next door site @ 1108. Entitlements are good through August 2022 and can be extended another year. . This property has a SF home on lot (1104 25th Ave SE) and is occupied with tenants. If you want to see the inside a 24 hour notice is required. If you want to drive-by or walk the lot, no appt is necessary but please let us know so we can keep track.

From elevation to risk assessment

Search for detailed parcel information including; Elevation & Vegetation Maps, Ownership Information, Detailed Parcel Information, Crop History Map, Soil Survey Productivity Data, and more.

Research Parcel Information

Environmental Factors

Flood Factor ™
/ 10
Fire Factor ™
/ 10
Heat Factor ™
/ 10
Wind Factor ™
/ 10
Source:First Street
Contact Seller

Coldwell Banker Realty

Minneapolis, MN

(612) 280-8889