Sign up
Log in
Results
View all 1 pictures
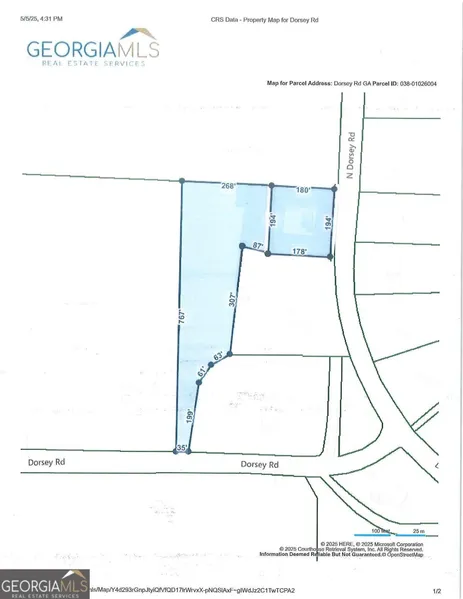
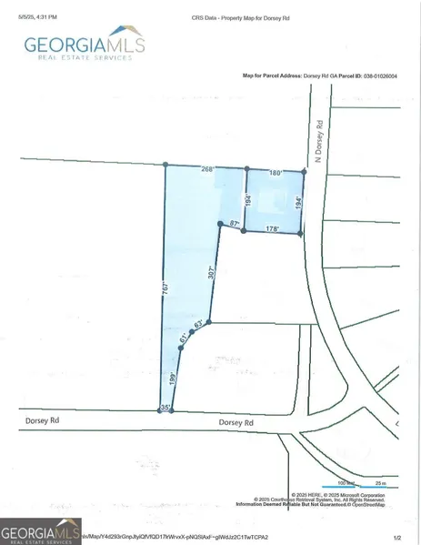
Size: 3.5 Acres

Is this your property? Sell it faster with premium placement and targeted ads.

Residential Lot - Hampton, GA

fantastic 2 Lots 0.80 and 2.66 Acres in Henry County. The two lots make an extension of 3.5 Acres in level surface.

Copyright © 2025 Georgia Multiple Listing Service. All rights reserved. All information provided by the listing agent/broker is deemed reliable but is not guaranteed and should be independently verified.

Read More

From elevation to risk assessment

Search for detailed parcel information including; Elevation & Vegetation Maps, Ownership Information, Detailed Parcel Information, Crop History Map, Soil Survey Productivity Data, and more.

Research Parcel Information
Contact Seller

RE/MAX Advantage

Jonesboro, GA

(770) 305-2500

Jose Martinez

RE/MAX Advantage
View Phone Number
i
By clicking the button, you agree to our Terms of Use and Privacy Policy.

Is this your property? Sell it faster with premium placement and targeted ads.

Provided By

RE/MAX Advantage, (770) 305-2500
Source: ListHub, MLS# 10515709
Listing status: Active
Listing last updated: September 23, 2025 at 1:32 PM
Listing last checked: October 10, 2025 at 7:30 AM
Report this listing

Other Land for Sale in Henry County