Sign up
Log in
Results
View all 3 pictures
Size: 0.51 Acres
Type: House
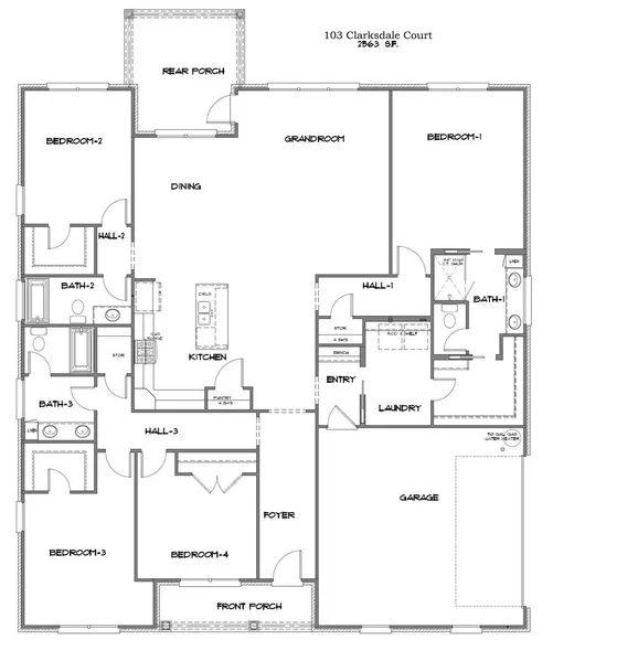
Home: 4 beds - 3 full baths - 2,563 Sq Ft

Is this your property? Sell it faster with premium placement and targeted ads.

Traditional, Single Family - Dothan, AL

This thoughtfully designed 4-bedroom, 3-bath home offers 2,552 square feet of stylish living space with a split floorplan and open-concept layout. The inviting grandroom flows seamlessly into the kitchen and dining areas, creating the perfect space for gatherings. The kitchen features a large island, granite countertops, pantry, stainless steel appliances, gas range, and built-in microwave. A mudroom at the entry with storage and bench adds convenience, while the sizeable laundry room provides functionality. The primary suite includes a walk-in closet, his-and-her sinks, tile shower, and private toilet closet. Additional highlights include an entry foyer, extra storage closets, rear covered patio, sprinkler system, and a side-entry double garage. Finishes throughout include a mix of vinyl plank, tile, and carpet for both durability and comfort.

Copyright © 2025 Dothan Association of Re...

Read More

From elevation to risk assessment

Search for detailed parcel information including; Elevation & Vegetation Maps, Ownership Information, Detailed Parcel Information, Crop History Map, Soil Survey Productivity Data, and more.

Research Parcel Information
Contact Seller

Coldwell Banker/Alfred Saliba

DOTHAN, AL

(334) 793-6600

Robert Hewes

Coldwell Banker/Alfred Saliba
View Phone Number
By clicking the button, you agree to our Terms of Use and Privacy Policy.

Is this your property? Sell it faster with premium placement and targeted ads.

Provided By

Coldwell Banker/Alfred Saliba, (334) 793-6600
Source: ListHub, MLS# 204140
Listing status: Active
Listing last updated: November 1, 2025 at 11:39 AM
Listing last checked: December 11, 2025 at 3:30 PM
Report this listing

Other Land for Sale in Houston County