Sign up
Log in
Results
View all 1 pictures

Is this your property? Sell it faster with premium placement and targeted ads.

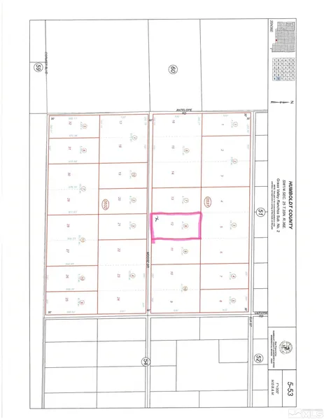
4.77 Acres in Winnemucca, NV - $15,000

This 4.77 acre parcel offers a great opportunity for country living with peaceful mountain views. Located away from town in a quiet area. Ideal for an off-grid setup. Owner will carry the note with acceptable terms. Neither the seller, nor their real estate broker, make any warranty as to the quantity or quality of the underground water source. Buyer shall be responsible for determining the exact boundaries of the property, as well as all costs associated with bringing utilities to the property.

From elevation to risk assessment

Search for detailed parcel information including; Elevation & Vegetation Maps, Ownership Information, Detailed Parcel Information, Crop History Map, Soil Survey Productivity Data, and more.

Research Parcel Information
Contact Seller

CENTURY 21 Sonoma Realty

Winnemucca, NV

(775) 623-5045

J. Patrick Gray

CENTURY 21 Sonoma Realty
View Phone Number
By clicking the button, you agree to our Terms of Use and Privacy Policy.

Is this your property? Sell it faster with premium placement and targeted ads.

Provided By

CENTURY 21 Sonoma Realty, (775) 623-5045
Source: Century 21, MLS# 250002249
Listing last updated: July 23, 2025 at 3:33 AM
Listing last checked: November 15, 2025 at 9:30 PM
Report this listing

Other Land for Sale in Humboldt County