Sign up
Log in
Results
View all 12 pictures

Is this your property? Sell it faster with premium placement and targeted ads.

LAND - Byron Center, MI

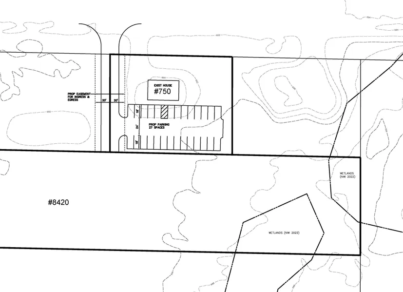
Half Acre Development Site - Zoned B2 - Commercial; US-131 traffic count north of 84th st is 65,000+, and south of 84th is 55,000+. This high-traffic location is just west of Culvers and Tanger Outlets that brings 4 million of shoppers to the Byron Center area a year. Making this a perfect place for any kind of office or retail business; ie. Insurance office or clothing store. Be a progressive part of the development of this prestigious community. Possibility of existing 1000sf home on 1000sf basement. Could be converted into retail or office uses with plenty of e take a look before someone else picks it up!

Copyright © 2025 Michigan Regional Information Center, LLC. All rights reserved. All information provided by the listing agent/broker is deemed reliable but is not guaranteed and should be independently verified.

Read More

From elevation to risk assessment

Search for detailed parcel information including; Elevation & Vegetation Maps, Ownership Information, Detailed Parcel Information, Crop History Map, Soil Survey Productivity Data, and more.

Research Parcel Information
Contact Seller

VENTURE REAL ESTATE GROUP

Grandville, MI

(616) 437-1883

Brian Silvernail

VENTURE REAL ESTATE GROUP
View Phone Number
By clicking the button, you agree to our Terms of Use and Privacy Policy.

Is this your property? Sell it faster with premium placement and targeted ads.