Sign up
Log in
Results
View all 2 pictures

0.24 Acres in Mohawk, MI - $1,200

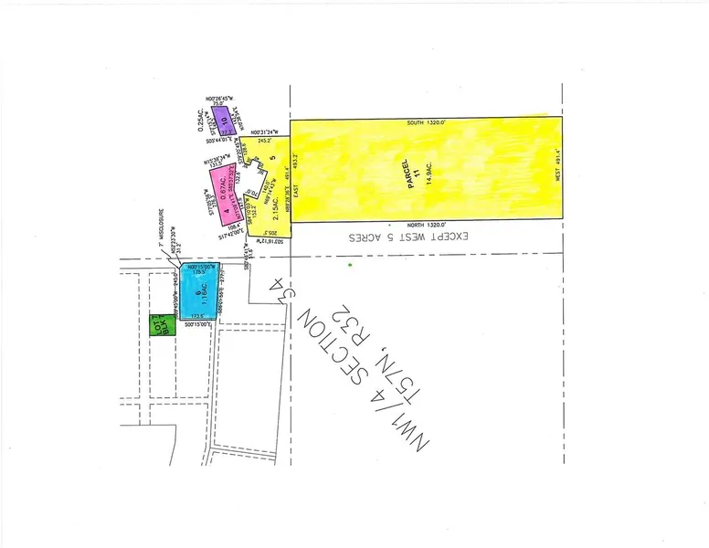
Building site in the quaint town of Fulton! Property may be on both sides of 14th St. Buyer responsible for verifying availability and location of utilities. If survey is required, survey shall be at Buyer's expense. Maps provided are only approximations and NOT surveys. Parcel is labeled as 10 on map. Seller is a Michigan licensed real estate agent. Lot dimensions and acreage are only approximations. Sewer information per the Township office: Properties require a septic tank on the property which must be connected to the township drain-field system. Buyer would have to install a septic tank and connection to the township drain-field system may have to be brought to the property at Buyers expense. Property to be conveyed by Quit Claim Deed. Seller to provide Quit Claim Deed. Buyer to pay for owners policy of title insurance.

From elevation to risk assessment

Search for detailed parcel information including; Elevation & Vegetation Maps, Ownership Information, Detailed Parcel Information, Crop History Map, Soil Survey Productivity Data, and more.

Research Parcel Information

Environmental Factors

Flood Factor ™
/ 10
Fire Factor ™
/ 10
Heat Factor ™
/ 10
Wind Factor ™
/ 10
Source:First Street
Contact Seller

CENTURY 21 Affiliated

Houghton, MI

(906) 361-7159

Provided By

CENTURY 21 Affiliated, (906) 361-7159
Source: Century 21, MLS# 1077332
Listing last updated: February 5, 2022 at 5:23 PM
Listing last checked: December 1, 2025 at 9:30 AM
Report this listing