Is this your property? Sell it faster with premium placement and targeted ads.
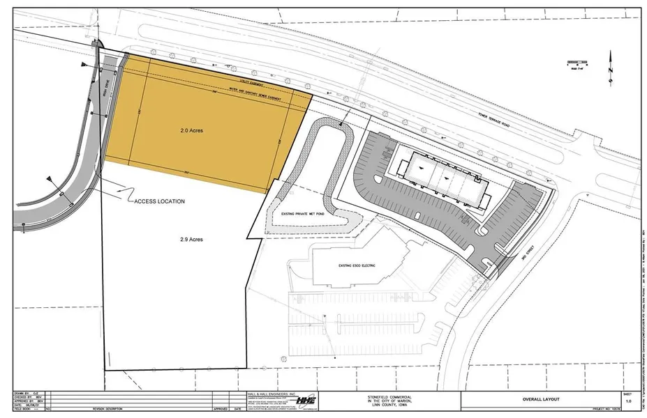
Shovel-ready site located on the Tower Terrace Road extension in Marion, near the Linn-Mar campus. This upscale professional park is home to ESCO Group, YMCA, UnityPoint, and other medical and retail users. Price includes a fully developed, level lot with utilities; fiber connectivity is available via IMON. Site size is flexible, with 2 to 6.7 acres available. Preliminary plat is complete; owner will final plat to a buyer’s specific lot size. The City’s new comprehensive plan designates the area as “MU – Mixed Use.” This allows for higher-intensity residential development (over 14 units/acre), including stand-alone multifamily or upper-story residential. The commercial component is intended to complement the residential use with services such as medical or dental clinics, personal services, daycare, assisted living, grocery, retail, restaurants, cafes, and more. Mixed-use developments wi...
Shovel-ready site located on the Tower Terrace Road extension in Marion, near the Linn-Mar campus. This upscale professional park is home to ESCO Group, YMCA, UnityPoint, and other medical and retail users. Price includes a fully developed, level lot with utilities; fiber connectivity is available via IMON. Site size is flexible, with 2 to 6.7 acres available. Preliminary plat is complete; owner will final plat to a buyer’s specific lot size. The City’s new comprehensive plan designates the area as “MU – Mixed Use.” This allows for higher-intensity residential development (over 14 units/acre), including stand-alone multifamily or upper-story residential. The commercial component is intended to complement the residential use with services such as medical or dental clinics, personal services, daycare, assisted living, grocery, retail, restaurants, cafes, and more. Mixed-use developments will be evaluated for mobility, layout, and public open space integration.
Copyright © 2026 Iowa City Area Association of REALTORS®. All rights reserved. All information provided by the listing agent/broker is deemed reliable but is not guaranteed and should be independently verified.
Search for detailed parcel information including; Elevation & Vegetation Maps, Ownership Information, Detailed Parcel Information, Crop History Map, Soil Survey Productivity Data, and more.
Research Parcel InformationIs this your property? Sell it faster with premium placement and targeted ads.