Sign up
Log in
Results
View all 4 pictures

Is this your property? Sell it faster with premium placement and targeted ads.

Land/Lot - Lancaster, CA

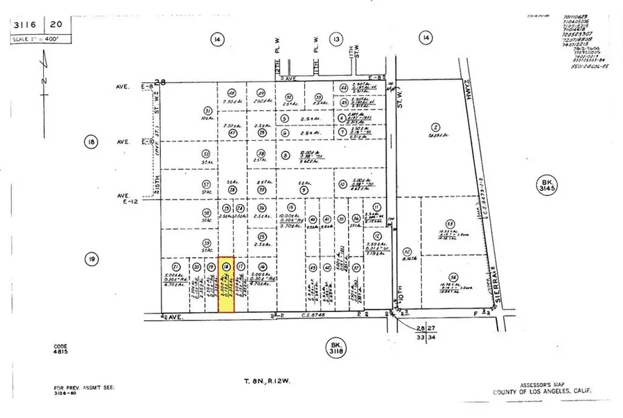
PRICE REDUCTION!! 2.35+/- acres flat land on paved Ave. F Zoned LCD22*. The property is located close/next to the Bakersfield to Palmdale High-Speed rail project which connects the Central Valley to the Antelope Valley with an approximately 25-minute high-speed rail trip. Property is located in the General William J. Fox Airfield Specific Plan which is in one of three areas designated by Lancaster for Cannabis Industry-Grower, Nursery operator, manufacturer, R & D, or Distribution. Hwy. 14 on/off ramps are within eyesight!!! Less than five minutes drive to Downtown Lancaster.

You may google the following GPS coordinates to locate the property: 34.748384 -118.155123

Copyright © 2025 California Regional Multiple Listing Service, Inc. All rights reserved. All information provided by the listing agent/broker is deemed reliable but is not guaranteed and should be independently verified.

Read More

From elevation to risk assessment

Search for detailed parcel information including; Elevation & Vegetation Maps, Ownership Information, Detailed Parcel Information, Crop History Map, Soil Survey Productivity Data, and more.

Research Parcel Information
Contact Seller

Rich Estate Props

License #00895193

Tarzana, CA

(818) 577-3822

Richard Khatibi

Rich Estate Props
View Phone Number
By clicking the button, you agree to our Terms of Use and Privacy Policy.

Is this your property? Sell it faster with premium placement and targeted ads.

Provided By

Rich Estate Props, (818) 345-4601
Source: ListHub, MLS# SR21197345
Listing status: Active
Listing last updated: November 16, 2025 at 10:58 AM
Listing last checked: December 1, 2025 at 10:30 AM
Report this listing

Other Land for Sale in Los Angeles County