Sign up
Log in
Results
View all 9 pictures

0.3 acres in Los Angeles County, CA

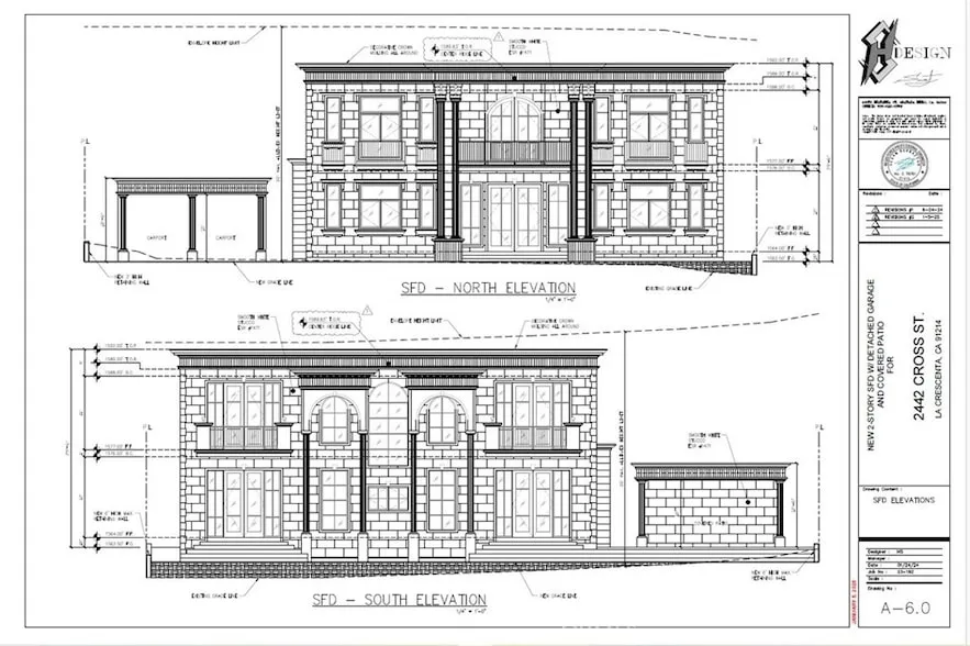
Prime La Crescenta development opportunity! Vacant land offered with approved plans for a 4,260 sq ft custom home, including garage, patio, pool, grading, and retaining walls. Plans have completed plan check and are ready for permit issuance once remaining standard fees and permit extensions are paid. Permit extensions are available and will carry approvals into Spring 2026 (final extension period). Start with grading and retaining wall permits, then proceed with home construction after inspection approval. A great chance to save months of design and review time and build in a sought-after La Crescenta location.

From elevation to risk assessment

Search for detailed parcel information including; Elevation & Vegetation Maps, Ownership Information, Detailed Parcel Information, Crop History Map, Soil Survey Productivity Data, and more.

Research Parcel Information

Directions

Cross Street Briggs

Contact Seller
Keller Williams R. E. Services

License #00983815

Glendale, CA

(747) 347-4293

Vartan Ambarian

Keller Williams R. E. Services
View Phone Number
By clicking the button, you agree to our Terms of Use and Privacy Policy.

Provided By

Keller Williams R. E. Services, (747) 347-4293
Source: Homes, MLS# GD26011327
Listing last updated: January 27, 2026 at 6:36 AM
Listing last checked: January 26, 2026 at 6:01 AM
Report this listing