Sign up
Log in
Results
View all 1 pictures
Off Market
$200,000

Rexburg, ID 83440(Madison County)

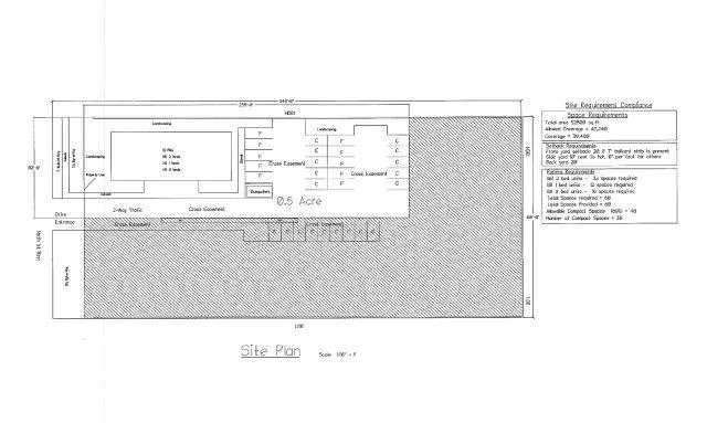
Size: 0.5 Acres

0.5 Acres in Rexburg, ID - $200,000

This build is designed for 16 units. The property is the ideal location for a multi-family/community housing project being located in a high residential zone 1, which can allow up to 30 units per acre. Located a quarter of a block from Broulim's Supermarket and 1 1/2 blocks from the Melaleuca Center. Within walking distance from BYU-I. Plans and comps can be transferred to buyer for project which could be underway upon purchase. Building permits will need to be pulled. Taxes will be accessed upon purchase.

Contact Seller

Keller Williams Realty East Idaho

Idaho Falls, ID

(208) 529-8888

Provided By

Keller Williams Realty East Idaho, (208) 529-8888
Listing last updated: February 4, 2022 at 6:37 AM
Report this listing