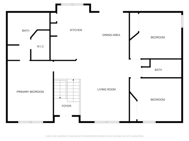
2 Miles from The Richmond Centre & I-75 Exit 87, 1 Acre Lot, Over 2000 Finished Square Feet with an Almost 800SQFT Garage and ALL BRAND NEW! Yes Please! This awesome split foyer home features a split bedroom design on the main level, large kitchen with space for an eat in table, pantry, granite counter tops, stainless appliances, under cabinet lighting and tiled back splash, primary ensuite w/walk in closet, tiled shower, free standing soaking tub, double vanities with granite counter tops too. Downstairs you'll find the 4th bedroom with full bath & walk in closet... this space also has a side entry door with a deck to access the side yard. There is also a back deck off the kitchen & dining rooms as well as a Trex deck off the front door. The garage is 28' in depth, there is LVT flooring throughout except for carpet in the 2 main level spare bedrooms, the yard will have landscaping insta...
2 Miles from The Richmond Centre & I-75 Exit 87, 1 Acre Lot, Over 2000 Finished Square Feet with an Almost 800SQFT Garage and ALL BRAND NEW! Yes Please! This awesome split foyer home features a split bedroom design on the main level, large kitchen with space for an eat in table, pantry, granite counter tops, stainless appliances, under cabinet lighting and tiled back splash, primary ensuite w/walk in closet, tiled shower, free standing soaking tub, double vanities with granite counter tops too. Downstairs you'll find the 4th bedroom with full bath & walk in closet... this space also has a side entry door with a deck to access the side yard. There is also a back deck off the kitchen & dining rooms as well as a Trex deck off the front door. The garage is 28' in depth, there is LVT flooring throughout except for carpet in the 2 main level spare bedrooms, the yard will have landscaping installed depending on weather & the ground will be seeded & strawed. 1 year builder's warranty. House is NOT in the flood plain. Seller has a LOMA (Letter of Map Amendment) stating the house is built out of the flood plain & flood insurance is not required. Owner/Broker/Builders.
Search for detailed parcel information including; Elevation & Vegetation Maps, Ownership Information, Detailed Parcel Information, Crop History Map, Soil Survey Productivity Data, and more.
Research Parcel InformationLancaster Road or Hampton Way to Old Towne Branch, turn onto Adkinson Drive, this home will be your first one on the right.