Sign up
Log in
Results
View all 1 pictures

Is this your property? Sell it faster with premium placement and targeted ads.

Unimproved Land - Waco, TX

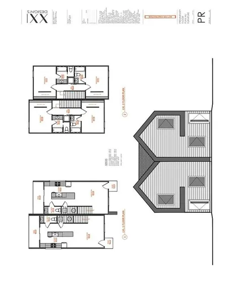
Investment or Baylor Housing Opportunity – This upcoming two-story duplex presents a versatile investment in the heart of Waco. Each side will feature two bedrooms and two-and-a-half bathrooms, offering comfort and privacy for residents. The property spans a total of 2,154 sq. ft. and will include all appliances, a fully fenced yard, and designated parking.

With sewer, gas, and two water meters already in place, construction will begin once under contract and is estimated to be completed within 4–6 months. Zoned 02, this property also qualifies for short-term rental use such as Airbnb, adding to its investment appeal.

Whether you’re looking to house Baylor students, generate long-term rental income, or tap into the growing short-term rental market, this property is a prime opportunity.

Copyright © 2026 North Texas Real Estate Information Systems, Inc. All rights reserved. All information pr...

Read More

From elevation to risk assessment

Search for detailed parcel information including; Elevation & Vegetation Maps, Ownership Information, Detailed Parcel Information, Crop History Map, Soil Survey Productivity Data, and more.

Research Parcel Information
Contact Seller

Keller Williams Realty, Waco

License #0792655

Waco, TX

(254) 751-7900

Vanessa Garcia

Keller Williams Realty, Waco
View Phone Number
By clicking the button, you agree to our Terms of Use and Privacy Policy.

Is this your property? Sell it faster with premium placement and targeted ads.

Provided By

Keller Williams Realty, Waco, (254) 717-9306
Source: ListHub, MLS# 21049442
Listing status: Active
Listing last updated: December 31, 2025 at 10:07 PM
Listing last checked: December 31, 2025 at 8:54 PM
Report this listing

Other Land for Sale in McLennan County