Sign up
Log in
Results
View all 1 pictures

Is this your property? Sell it faster with premium placement and targeted ads.

LAND - Charlotte, NC

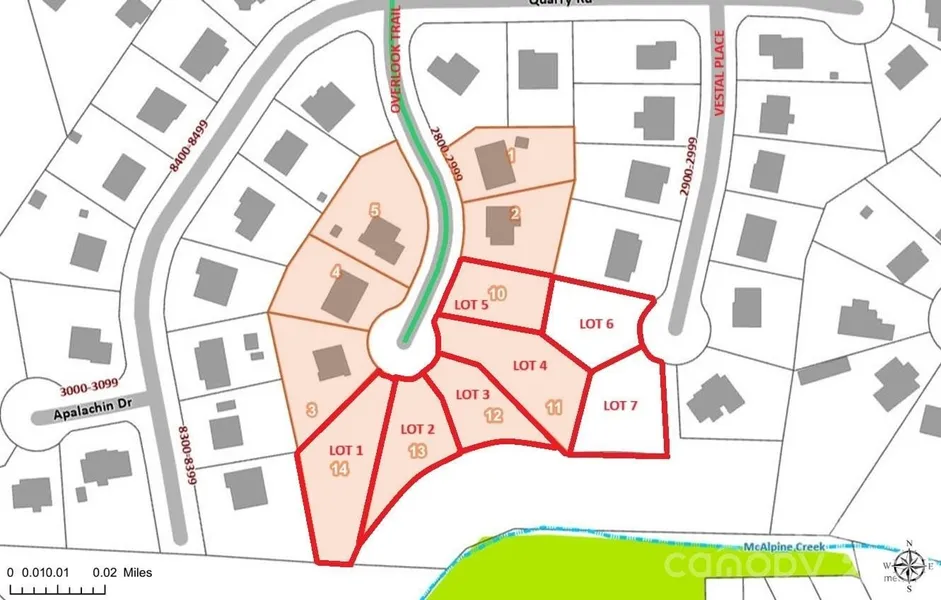
Builders take note, single family or duplex lots . Just recently surveyed and released 6 cul-de-sac lots. This is 6 new lots in the neighborhood of Stoneridge. No found CCR's 2 Lots on Vestal Place and 4 on Overlook Trail, Located just off of Idlewild Rd. Survey and soil test available. Several of the sites are basement lots. Water and Sewer taps fees will be required. Survey attached. Address and parcel numbers are below. 2834 Overlook Trail 0.206 acres Tax Id- 16520218, Lot 2 2840 Overlook Trail 0.185 acres Tax Id- 16520217,Lot 3 2900 Overlook Trail 0.277 acres Tax Id- 16520216, Lot 4 2908 Overlook Trail 0.166 acres Tax Id- 16520215, Lot 5 2905 Vestal Place 0.199 acres Tax Id- 16520214, Lot 6 2901 Vestal Place 0.226 acres Tax Id- 15620213, Lot 7 Note- the foundations will require pylons or floating slabs.

Copyright © 2026 Canopy MLS. All rights reserved. All information provided by the ...

Read More

From elevation to risk assessment

Search for detailed parcel information including; Elevation & Vegetation Maps, Ownership Information, Detailed Parcel Information, Crop History Map, Soil Survey Productivity Data, and more.

Research Parcel Information
Contact Seller

Cole Real Estate Advisors

License #163998

Charlotte, NC

(704) 337-5000

Mike Brown

Cole Real Estate Advisors
View Phone Number
i
By clicking the button, you agree to our Terms of Use and Privacy Policy.

Is this your property? Sell it faster with premium placement and targeted ads.

Provided By

Cole Real Estate Advisors, (704) 906-9168
Source: ListHub, MLS# 4343831
Listing status: Active
Listing last updated: February 5, 2026 at 7:36 PM
Listing last checked: February 6, 2026 at 4:30 AM
Report this listing

Other Land for Sale in Mecklenburg County