Sign up
Log in
Results
View all 1 pictures
Size: 13.26 Acres

LAND - Rockford, OH

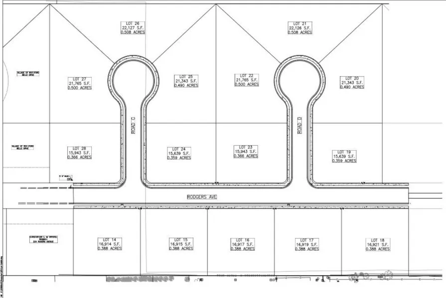
The time is now! Come build your dream home on a lot of your choosing in the new phase of Shanes Crossing Subdivision. 15 new lots ranging from .366 acres (15,379 sq ft) to .508 acres (22,127 sq ft) These lots will be available to close when roads and utility lines are completed. Estimated completion is 12-12-25.

Copyright © 2026 Western Regional Information Systems and Technology, Inc. All rights reserved. All information provided by the listing agent/broker is deemed reliable but is not guaranteed and should be independently verified.

Read More

From elevation to risk assessment

Search for detailed parcel information including; Elevation & Vegetation Maps, Ownership Information, Detailed Parcel Information, Crop History Map, Soil Survey Productivity Data, and more.

Research Parcel Information
Contact Seller

Gray Realty, LLC

License #2021003686

Celina, OH

(419) 586-5259

Joshua Johnson

Gray Realty, LLC
View Phone Number
By clicking the button, you agree to our Terms of Use and Privacy Policy.

Provided By

Gray Realty, LLC, (217) 285-9000
Source: ListHub, MLS# 1041666
Listing status: Pending
Listing last updated: January 30, 2026 at 11:37 AM
Listing last checked: February 9, 2026 at 9:30 PM
Report this listing