Sign up
Log in
Results
View all 1 pictures
Size: 23 Acres

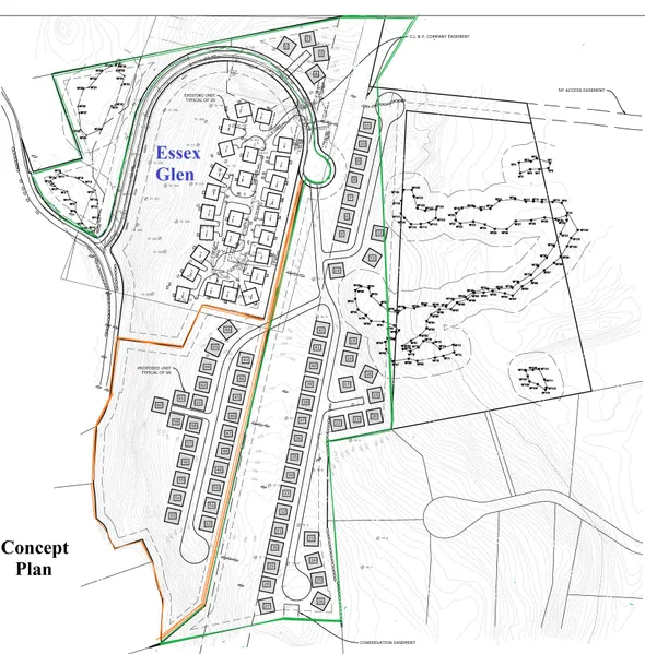
2 Development projects 23 AC & 10 AC in Essex

May be combined or sold separately Two Development projects on 23 acres (Lot 14-3) for $1,760,000 with a potential to have 42 units and on 10 acres (Lot14-2) for 10 acres (Lot14-2) for $660,000 with a potential to have 24 units adjacent to the Essex Glen in the AAC (Active Adult Community in the Rural Zone with a potential to have 24 units adjacent to the Essex Glen condominium community. Access to the site from the end on Essex Glen Drive at the cul de sac.). Convenient location minutes from Essex Village, Route 9 and I-95.

From elevation to risk assessment

Search for detailed parcel information including; Elevation & Vegetation Maps, Ownership Information, Detailed Parcel Information, Crop History Map, Soil Survey Productivity Data, and more.

Research Parcel Information

Directions

gps friendly

Contact Seller
Lyman Real Estate Brokerage & Development
(860) 750-9582

Ron Lyman

Lyman Real Estate Brokerage & Development
By clicking the button, you agree to our Terms of Use and Privacy Policy.